

Living Haus
Herr Göran Linke
017 ···
Nr. anzeigenPreise & Kosten
Provision für Käufer
provisionsfrei
Lage
Das ruhige und sonnige Grundstück für dieses Hausprojekt befindet sich in Lauter. Hier haben Sie einen schönen Ausblick über die Umgebung. Einkaufs-Möglichkeiten, Kindertagesstätten, Schulen, medizinische Einrichtungen etc. sind in kurzer Zeit erreichbar.
Das Grundstück ist erschlossen. Alle erforderlichen Medien liegen...
Das Haus
Kategorie
Bungalow
Energie & Heizung
Warum sehe ich diese Anzeige? – Du siehst diese Anzeige basierend auf Ihrer Navigation auf unserer Website und den Suchkriterien, die du verwendet hast.
Weitere Energiedaten
Haustyp
KfW 40
Heizungsart
Luft-/Wasser-Wärmepumpe, Zentralheizung
Details
Objektbeschreibung
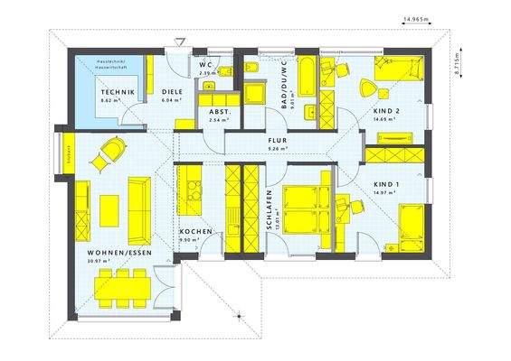
Diesen Bungalow sehen - und sofort verlieben! So geht es vielen unserer Baufamilien, die vom Wohnen mit Urlaubsfeeling träumen - und sicher auch Ihnen! Hier können Sie und Ihre Familie das entspannte Wohnen auf einer Ebene genießen. Der offene Wohn-Koch- und Essbereich ist der geniale Treffpunkt für Ihre ganze Familie. Es...
Ausstattung
Livinghaus - da ist Alles mit drin:
- Grundstücksservice
- Finanzierungsservice
- Hausbau-Förderung
- alle notwendigen Bauherren-Versicherungen
- DGNB-Zertifizierung in Gold
- der Architekt für die Baugenehmigungsplanung
Das Alles brauchen Sie sowieso, deshalb bekommen Sie das bei Livinghaus gleich mit...
Weitere Informationen
Sonstiges
Das hier angebotene Grundstück ist im obigen Preis eingerechnet. Es wird ohne zusätzliche Provision (bei einem Maklerangebot wird Vermittlungsprovision fällig) für einen Livinghaus-Bauherren bereit gestellt. Zusätzliche Baunebenkosten müssen noch hinzugerechnet werden, hierüber berate ich Sie gern.
Die...
Anbieter der Immobilie
Living Haus
Donauwörther Straße 5, 09114 Chemnitz

Online-ID: 2m38q5h
Referenznummer: 30269-22001
Finde Angebote wie dieses
Hier geht es zu unserem Impressum, den Allgemeinen Geschäftsbedingungen, den Hinweisen zum Datenschutz und nutzungsbasierter Online-Werbung.