Kernsaniertes Haus in Ludwigshafen - Kapitalanlage mit Fördervorteil & positivem Cashflow
In der Schanzstraße 66 in Ludwigshafen entsteht ein hochwertig kernsaniertes Hinterhaus mit ca. 95 m² Wohnfläche auf zwei Etagen - modern, energieeffizient und mit maximaler Flexibilität für Kapitalanleger und Eigennutzer.
Das Gebäude wird vollständig auf Rohbaustand zurückgeführt und anschließend in Neubauqualität wieder aufgebaut - inklusive neuer Leitungen, Dämmung, Fenster, Böden und technischer Ausstattung. Durch die Umsetzung im KfW-70-Standard profitieren Käufer von einem Tilgungszuschuss von rund 21.000 € sowie langfristig niedrigen Energiekosten.
Dank des flexiblen Raumkonzepts lässt sich das Objekt sowohl als komfortable 3- bis 4-Zimmer-Maisonette für Eigennutzer gestalten, als auch in ein 6-Zimmer-WG-Konzept für Kapitalanleger umwandeln - ideal für Studierende oder Pendler.
Ein besonderes Highlight: Es fallen keine Zahlungen während der Bauphase an. Zinsen und Tilgung starten erst mit der Fertigstellung - und dank der Vermietung ab Übergabetag entsteht ein positiver Cashflow ab Tag 1. Damit vereint dieses Projekt Sicherheit, Rendite und steuerliche Vorteile auf einzigartige Weise.
Merkmale
Bezug: nach Vereinbarung
Keller
Gäste-WC
Terrasse
Hochwertige Kernsanierung (Fertigstellung 2025)
KfW-70-Standard mit staatlichem Tilgungszuschuss (ca. 21.000 €)
Flexible Grundrissgestaltung (3-4 Zimmer oder WG-Konzept mit bis zu 6 Zimmern)
Hochwertige Materialien und energieeffiziente Bauweise
5 % degressive AfA fĂĽr Kapitalanleger
Keine Belastung während der Sanierung - Zahlung erst bei Fertigstellung
Mietgarantie & Vermietungsservice inklusive
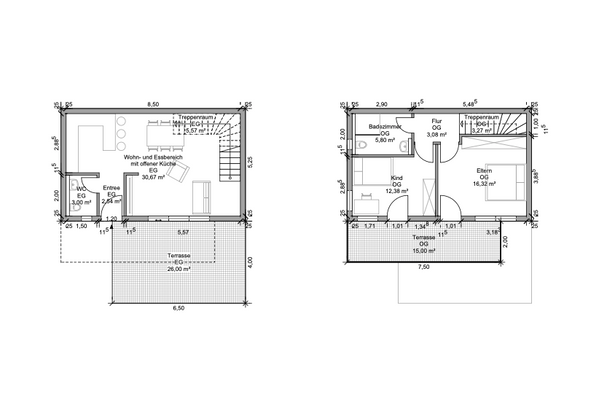
Grundrisse
Grundrisse
1 / 1
Realisiere Dein Projekt
Bausubstanz und Energie
Der Anbieter hat keine Informationen zum Energieverbrauch bereit gestellt.
Baujahr2025
Zustand der Immobilierenoviert / saniert
HeizungsartFuĂźbodenheizung
EnergieträgerLuft-/Wasser-Wärmepumpe
Preisdetails
Kaufpreis
315000 €315.000 €
3.315,78 €/m²
Provision für Käufer
provisionsfrei
Geschätzte Gesamtkosten
337.050 €1
Kaufpreis
315.000 €
Kaufnebenkosten
22.050 €
2
Notarkosten (1,5%)
4.725 €
Grunderwerbsteuer (5%)
15.750 €
Grundbucheintrag (0,5%)
1.575 €
1Der angezeigte Wert ist eine automatisch berechnete Schätzung von immowelt.
2Bei den Angaben handelt es sich um ortsübliche Werte. Individuelle Kosten können abweichen.
Lage
Friesenheim/Nord, Ludwigshafen am Rhein (67063)
Der Anbieter hat die genaue Adresse nicht freigegeben
Das Objekt liegt in zentraler Lage von Ludwigshafen am Rhein, nur wenige Minuten von der Rhein-Galerie, dem Rheinund dem öffentlichen Nahverkehr entfernt.
Ludwigshafen bildet gemeinsam mit Mannheim das wirtschaftliche Zentrum der Metropolregion Rhein-Neckar - einem der stärksten Wirtschaftsräume Deutschlands.
Der Standort ist geprägt durch hohe Arbeitsplatzdichte und kontinuierliche Wohnraumnachfrage.
Der weltgrößte Chemiekonzern BASF sowie zahlreiche internationale Unternehmen wie Abbott, DyStar oder DHL Logistics schaffen stabile Beschäftigung und sorgen für dauerhafte Nachfrage nach Wohnraum.
Ăśber die Autobahnen A6, A61 und A65 sowie die S-Bahn Rhein-Neckar sind Mannheim, Heidelberg, Kaiserslautern und das gesamte Rhein-Main-Gebiet bestens erreichbar.
Weitere Informationen
Sonstiges
Alle Angaben und Informationen wurden vom Auftraggeber zur Verfügung gestellt. Eine Haftung für ihre Genauigkeit und Vollständigkeit kann daher nicht übernommen werden. Der Auftraggeber/Verkäufer behält sich das Recht auf Zwischenverkauf vor.
Wir möchten Sie darauf hinweisen, dass wir nur Anfragen mit vollständiger Anschrift, Telefonnummer und E-Mail-Adresse bearbeiten können. Ihr Verständnis hierfür wird geschätzt.
Stichworte
Anzahl der Badezimmer: 2, Anzahl Terrassen: 1, 2 Etagen, modernisiert: 2025