

Main Estate Immobilien GmbH
Herr Benjamin Dönitz
061 ···
Nr. anzeigenPreise & Kosten
Provision für Käufer
3,57 % inkl. MwSt.
Die Käuferprovision beträgt 3,57 % (inkl. MwSt.) des beurkundeten Kaufpreises.
Lage
Lage:
Langen liegt im Bundesland Hessen und gehört zum Landkreis Offenbach. Die Stadt hat etwa 39.000 Einwohner und befindet sich zentral im Rhein-Main-Gebiet, zwischen den Städten Frankfurt am Main und Darmstadt. Diese Lage macht Langen zu einem attraktiven Wohn- und Arbeitsort, da es die Vorteile einer kleineren Stadt...
Das Haus
Kategorie
Mehrfamilienhaus
Baujahr
1960
Bezug
Nach Vereinbarung
Derzeitige Nutzung
vermietet
Energie & Heizung
Warum sehe ich diese Anzeige? – Du siehst diese Anzeige basierend auf Ihrer Navigation auf unserer Website und den Suchkriterien, die du verwendet hast.
Energieausweistyp
Bedarfsausweis
Gebäudetyp
Wohngebäude
Baujahr laut Energieausweis
1960
Wesentliche Energieträger
Gas
Gültigkeit
08.08.2024 bis 07.08.2034
Effizienzklasse
H
Endenergiebedarf
301,90 kWh/(m²·a)
Weitere Energiedaten
Haustyp
Massivhaus
Energieträger
Gas
Heizungsart
Zentralheizung
Details
Objektbeschreibung
Wichtiger Hinweis!
Für diese Immobilie bestehen einige baurechtliche Themen, die mit dem zuständigen Bauamt zu klären sind. Diese können Einfluss auf mögliche Renovierungs- oder Umbaumaßnahmen haben. Eine sorgfältige Prüfung und Abstimmung mit dem Bauamt wird daher empfohlen, um alle Optionen sowie mögliche Einschränkungen...
Ausstattung
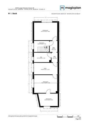
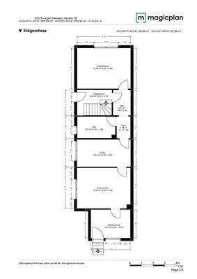
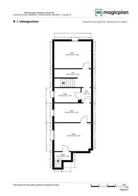
- Wohnfläche: ca. 204,17 m²
- Kellerfläche: ca. 55,46 m²
- Grundstücksfläche: ca. 333,00 m²
- Keller: Ja
- Ist-Miete gesamt: ca. 11.640,00 EUR p.a. (Nettokaltmiete)
- Soll-Miete gesamt: ca. 32.4448,00 EUR p.a. (Nettokaltmiete)
- Leerstandsquote (nach Mieteinheiten): 2 vom 4 Einheiten vermietet
-...
Preisinformation
Ist-Mieteinnahmen pro Jahr: 11.640,00 EUR
Weitere Informationen
Sonstiges
GELDWÄSCHE:
Als Immobilienmaklerunternehmen ist die Main Estate Immobilien GmbH nach § 2 Abs. 1 Nr. 14 und § 11 Abs. 1, 2 Geldwäschegesetz (GwG) dazu verpflichtet, bei der Begründung einer Geschäftsbeziehung die Identität des Vertragspartners festzustellen und zu überprüfen, bzw. sobald ein ernsthaftes...
Dokumente
Anbieter der Immobilie

Online-ID: 2m3c85t
Referenznummer: 132811885#xE0oP
Finde Angebote wie dieses
Hier geht es zu unserem Impressum, den Allgemeinen Geschäftsbedingungen, den Hinweisen zum Datenschutz und nutzungsbasierter Online-Werbung.