
ohne-makler.net - Immobilien selbst vermarkten
Privat von Raffael Siess
Kontaktiere den Anbieter schriftlich, es ist keine Telefonnummer hinterlegt.
Preise & Kosten
Provision für Käufer
provisionsfrei
Lage
Die Wohnung liegt zentral im Herzen von Leonberg und dennoch angenehm ruhig. Die Anbindung ist richtig gut: Die Bushaltestellen rund um den Leonberger Bahnhof sind in wenigen Minuten zu Fuß erreichbar, und der Bahnhof selbst liegt ebenfalls nah - ideal für schnelle Wege Richtung Stuttgart, Böblingen oder Sindelfingen. Mit dem...
Die Wohnung
Wohnungslage
2. Geschoss
Bezug
nach Absprache
Derzeitige Nutzung
vermietet
Wohnanlage
Energie & Heizung
Warum sehe ich diese Anzeige? – Du siehst diese Anzeige basierend auf Ihrer Navigation auf unserer Website und den Suchkriterien, die du verwendet hast.
Energieausweistyp
Verbrauchsausweis
Gebäudetyp
Wohngebäude
Effizienzklasse
D
Endenergieverbrauch
111,00 kWh/(m²·a)
Weitere Energiedaten
Energieträger
Öl
Heizungsart
Zentralheizung
Details
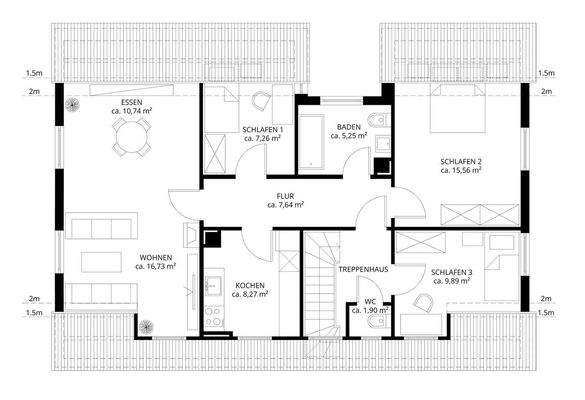
Objektbeschreibung
Diese vermietete 3,5-Zimmer-Wohnung in einem ruhigen 4-Familienhaus in Leonberg ist eine solide und sofort rentable Kapitalanlage. Die Wohnung ist langfristig für 1.000€ Kalt inklusive Stellplatz vermietet - das bedeutet stabile Einnahmen ab dem ersten Tag, ohne Neuvermietung, ohne Verwaltungsaufwand und ohne...
Ausstattung
Keller, Parkett, Laminat, Fliesen
Bemerkungen:
Allgemein
- Langfristig für 1.000€ Kalt an einen sehr zuverlässigen Mieter vermietet
- Einbauküche inkl. Herd, Geschirrspüler und Dunstabzugshaube (vom Mieter)
- Bad mit Badewanne, Waschbecken, WC und Leitungen (2015)
- Hochwertige und gut erhaltene...
Preisinformation
1 Stellplatz, Kaufpreis: 5.000,00 EUR
Weitere Informationen
Sonstiges
Heizungsart: Zentralheizung
Energieträger: Öl
Makleranfragen nicht erwünscht. Nach § 7 UWG sind unaufgeforderte Kontaktaufnahmen durch Makler ohne ausdrückliche Einwilligung des Empfängers verboten!
ohne-makler (OM) ist weder Anbieter noch Vermittler der Immobilie. OM betreibt eine Plattform...
Anbieter der Immobilie
ohne-makler.net - Immobilien selbst vermarkten
Humboldtstr. 25 A, 21509 Glinde
Privat von Raffael Siess
Dein Ansprechpartner
Kontaktiere den Anbieter schriftlich, es ist keine Telefonnummer hinterlegt.
Online-ID: 2m3cx5f
Referenznummer: 408853
Finde Angebote wie dieses
Hier geht es zu unserem Impressum, den Allgemeinen Geschäftsbedingungen, den Hinweisen zum Datenschutz und nutzungsbasierter Online-Werbung.