
Debeka Bausparkasse AG
Herr Uwe Lentjes
Kontaktiere den Anbieter schriftlich, es ist keine Telefonnummer hinterlegt.
Preise & Kosten
Provision für Käufer
2,38 % inkl. MwSt.
Lage
Habbelrath gehört zur Stadt Frechen, westlich gelegen von Grefrath. Eine gute Mischung aus dörflichem Charakter und städtischer Nähe machen diesen Ort aus. Habbelrath zählt zur Zeit knapp 3.500 Einwohner. Diverse Schulen und Einkaufmöglichkeiten finden Sie in Habbelrath vor. Darüber hinaus besteht die Nähe zum...
Die Wohnung
Wohnungslage
1. Geschoss (Dachgeschoss)
Bezug
Sofort
Wohnanlage
Energie & Heizung
Warum sehe ich diese Anzeige? – Du siehst diese Anzeige basierend auf Ihrer Navigation auf unserer Website und den Suchkriterien, die du verwendet hast.
Energieausweistyp
Bedarfsausweis
Gebäudetyp
Wohngebäude
Gültigkeit
07.01.2026 bis 07.12.2036
Effizienzklasse
F
Endenergiebedarf
166,40 kWh/(m²·a)
Weitere Energiedaten
Energieträger
Gas
Heizungsart
Etagenheizung
Details
Objektbeschreibung
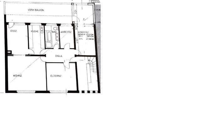
Diese schön in der ersten Etage gelegene Eigentumswohnung überzeugt durch Ihre tolle Lage im Ort sowie Ihrer Ausstattung mit eigenem Garten, zwei Garagen und diverser Abstellmöglichkeiten.
Wenn Sie das Haus im Erdgeschoss betreten, verfügt die Wohnung über einen eigenen Eingang, der sich als Diele mit Abstellmöglichkeiten...
Ausstattung
Das Objekt wurde 1966 erbaut und 1981 um einen Anbau erweitert. Das Haus besteht aus zwei Einheiten. 2023 wurde eine neue Gasbrennwert-Heizung eingebaut. Ca. 1980 wurde das Flachdach des gesamten Hauses erneuert, welches bis heute dicht ist.
Auch die Fenster wurden 1997 durch 2-Fach verglaste Wärmeschutzfenster ersetzt. Es...
Weitere Informationen
Sonstiges
Die genannten Informationen beruhen auf den Angaben des Verkäufers. Für die Richtigkeit und Vollständigkeit der Angaben wird keine Gewähr oder Haftung übernommen.
Seit dem 25. Mai 2018 gilt in Deutschland die EU-Datenschutz-Grundverordnung (DS-GVO). Sie regelt, wie private Unternehmen und öffentliche...
Anbieter der Immobilie

Debeka Bausparkasse AG
Debeka-Platz 2, 56073 Koblenz
Herr Uwe Lentjes
Dein Ansprechpartner
Kontaktiere den Anbieter schriftlich, es ist keine Telefonnummer hinterlegt.
Online-ID: 2m3dk5z
Referenznummer: 1009381#4Fd7ty
Finde Angebote wie dieses
Hier geht es zu unserem Impressum, den Allgemeinen Geschäftsbedingungen, den Hinweisen zum Datenschutz und nutzungsbasierter Online-Werbung.