
Wohnungsbau Aalen GmbH
Frau Irene Bauhammer
+49 ···
Nr. anzeigenPreise & Kosten
Provision für Käufer
provisionsfrei
Lage
Umfassende Nahversorgung.
Modernes Wohnen in zentraler Lage.
Unterrombach ist ein natürlich gewachsener Stadtteil mit Seele. Beliebt sind nicht nur Wochenmarkt und Freibad, sondern auch zahlreiche Freizeitangebote (Sport/Kultur/Wandern) und das vielseitige öffentliche Leben.
Ganz besonders attraktiv sind...
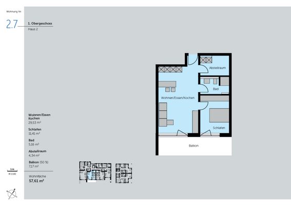
Die Wohnung
Wohnanlage
Energie & Heizung
Warum sehe ich diese Anzeige? – Du siehst diese Anzeige basierend auf Ihrer Navigation auf unserer Website und den Suchkriterien, die du verwendet hast.
Energieausweis: für diesen Gebäudetyp nicht notwendig
Weitere Energiedaten
Heizungsart
Fußbodenheizung, Luft-/Wasser-Wärmepumpe
Details
Objektbeschreibung
Im Aalener Stadtteil Unterrombach entstehen 15 Eigentumswohnungen und eine Gewerbeeinheit.
Ausstattung
Die Ausstattung.
Bequem und barrierearm.
Die Gebäude sind durch eine Tiefgarage miteinander verbunden und verfügen über einen Aufzug, mit dem die Wohngeschosse und das Untergeschoss ohne Stufen zu erreichen sind.
Die Wohnungen erhalten eine Fußbodenheizung sowie eine Türsprechanlage mit Videokamera.
Die...
Weitere Informationen
Sonstiges
Sonstiges
Bezug voraussichtlich Ende 2027
Anbieter der Immobilie
Wohnungsbau Aalen GmbH
Südlicher Stadtgraben 13, 73430 Aalen
Online-ID: 2m3ea5x
Referenznummer: 99921/2.7
Finde Angebote wie dieses
Hier geht es zu unserem Impressum, den Allgemeinen Geschäftsbedingungen, den Hinweisen zum Datenschutz und nutzungsbasierter Online-Werbung.