
DER IMMO TIP Vermittlung von Immobilien GmbH
Herr Patrick Pflügner
035 ···
Nr. anzeigenPreise & Kosten
Provision für Mieter
provisionsfrei
Warum sehe ich diese Anzeige? – Du siehst diese Anzeige basierend auf Ihrer Navigation auf unserer Website und den Suchkriterien, die du verwendet hast.
Lage
Die Immobilie befindet sich in Dresden Striesen, nahe des Altenberger Platzes.
Der Standort überzeugt durch seine zentrale Lage und eine sehr gute Verkehrsanbindung. Haltestellen des öffentlichen Nahverkehrs sind in wenigen Gehminuten erreichbar - mit dem Auto benötigt man nur wenige Minuten ins Dresdner Stadtzentrum...
Büro-/Praxisfläche
Kategorie
Bürofläche
Baujahr
2024
Bezug
1. Quartal 2026
Geschoss
1. Geschoss
Details
Objektbeschreibung
Kurzbeschreibung
Büroneubau | Moderne Bürofläche ab Q1 2026 zur Miete | Dresden Striesen
Objekt
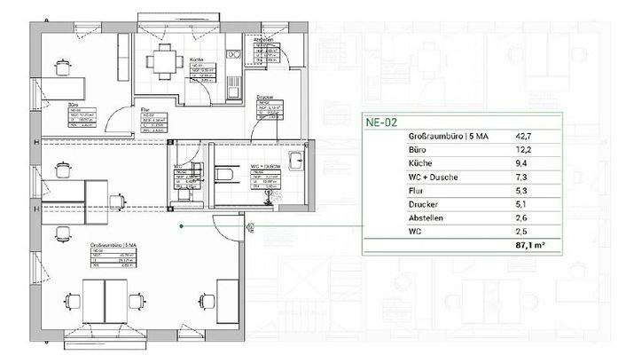
Zur Vermietung steht ein ca. 87 m² großes Büro, dass sich im 1. Obergeschoss eines Büroneubaus befindet. Die Fertigstellung ist für das 1. Quartal 2026 geplant.
Bei Interesse stellen wir Ihnen gern...
Ausstattung
* Barrierefreiheit
* Einbauküche möglich
* Aufzug
* Zertifizierung DGNB (gold) / EG40 Standard (geringe Energiekosten)
* Passive Kühlung im Sommer (Erdwärme) mit Nutzung PV
* Fußbodenheizung mit Erdwärme
* Vorinstallation Elektro mit Bodentanks und Beleuchtungen
* Barrierefreie Bäder mit Dusche &...
Weitere Informationen
Sonstiges
Baujahr: 2024
Befeuerung/Energieträger: Strom
Energieausweistyp: Bedarfsausweis
Energiekennwert Strom: 4,9 kWh/(m²*a)
Energiekennwert Wärme: 6,1 kWh/(m²*a)
Hinweis: Fehlende Angaben zum Energieausweis gemäß Energiesparverordnung 2014 ( EnEV ) begründen sich durch Nichtangabepflicht bei...
Anbieter der Immobilie
DER IMMO TIP Vermittlung von Immobilien GmbH
Semperstr. 1, 01069 Dresden
Online-ID: 2m3ej53
Referenznummer: 66937
Finde Angebote wie dieses
Hier geht es zu unserem Impressum, den Allgemeinen Geschäftsbedingungen, den Hinweisen zum Datenschutz und nutzungsbasierter Online-Werbung.