
McMakler GmbH
Ihr McMakler Team
080 ···
Nr. anzeigenPreise & Kosten
Provision für Käufer
Die Provision i.H.v. 3,57 % inkl. MwSt. ist mit Kaufvertragsbeurkundung fällig, sofern der Verkaufspreis über 83.000,00 € liegt.
Liegt der Verkaufspreis dagegen bei/unter 83. Weitere Informationen siehe Provisionshinweis.
Lage
Lage: Sackgassenlage mit weniger Fahrzeugen - sichere Umgebung für Familien und Haustiere
Bildung und Betreuung: Kindergärten und einigen Schulen in ca. 2km Entfernung bieten Familienfreundlichkeit
Nahversorgung: Anlaufstellen wie Supermarkt und Postfiliale in einem Radius von max. 2km
Anbindung: Nächste Autobahn...
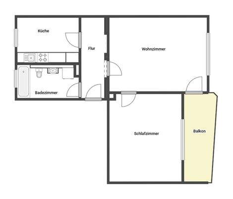
Die Wohnung
Wohnungslage
1. Geschoss
Bezug
nach Absprache
Wohnanlage
Energie & Heizung
Warum sehe ich diese Anzeige? – Du siehst diese Anzeige basierend auf Ihrer Navigation auf unserer Website und den Suchkriterien, die du verwendet hast.
Energieausweistyp
Verbrauchsausweis
Gebäudetyp
Wohngebäude
Baujahr laut Energieausweis
1960
Wesentliche Energieträger
Gas
Effizienzklasse
D
Endenergieverbrauch
123,30 kWh/(m²·a)
Weitere Energiedaten
Energieträger
Gas
Heizungsart
Zentralheizung
Details
Objektbeschreibung
Objektnr: 1066578
Attraktive 2-Zimmer-Wohnung in ruhiger Lage - ideal für Kapitalanleger
Zum Verkauf steht eine charmante 2-Zimmer-Wohnung in der Waldstraße 38, 84069 Schierling - gelegen in einer ruhigen Sackgasse, die ein angenehmes Wohnumfeld und ein hohes Maß an Sicherheit bietet. Die Lage eignet sich...
Ausstattung
+ In ruhiger Umgebung in Sackgassenlage (Nebenstraße), zur Vermietung, aber auch zur Selbstnutzung
+ Viel Entspannung im Freien dank eines Balkons
+beständige Einnahmequelle durch zuverlässige Mieterin
+Stellplatz, optional eine Garage
Weitere Informationen
Provisionshinweis
Die Provision i.H.v. 3,57 % inkl. MwSt. ist mit Kaufvertragsbeurkundung fällig, sofern der Verkaufspreis über 83.000,00 € liegt.
Liegt der Verkaufspreis dagegen bei/unter 83.000,00 €, ist die fest vereinbarte Mindestprovision i.H.v. mind. 5.950,00 € inkl. MwSt. mit Kaufvertragsbeurkundung fällig...
Anbieter der Immobilie
McMakler GmbH
Am Postbahnhof 17, 10243 Berlin
Online-ID: 2m3ek5u
Referenznummer: 826fb5ca89
Finde Angebote wie dieses
Hier geht es zu unserem Impressum, den Allgemeinen Geschäftsbedingungen, den Hinweisen zum Datenschutz und nutzungsbasierter Online-Werbung.