
Saxowert Immobilien GmbH & Co. KG
Herr Daniel Thiele
+49 ···
Nr. anzeigenPreise & Kosten
Provision für Käufer
3,57% inkl. MwSt.
Lage
Das Einfamilienhaus liegt in einer der begehrtesten Wohnlagen Dresdens, im Ortsteil Rochwitz am südöstlichen Elbhang. Die Umgebung ist geprägt von einer aufgelockerten Bebauung mit Einfamilienhäusern und Villen, eingebettet in viel Grün und umgeben von einer ruhigen, naturnahen Atmosphäre. Durch die erhöhte Hanglage oberhalb...
Das Haus
Kategorie
Einfamilienhaus
Baujahr
1959
Bezug
sofort
Energie & Heizung
Warum sehe ich diese Anzeige? – Du siehst diese Anzeige basierend auf Ihrer Navigation auf unserer Website und den Suchkriterien, die du verwendet hast.
Energieausweistyp
Bedarfsausweis
Gebäudetyp
Wohngebäude
Wesentliche Energieträger
Gas
Gültigkeit
05.11.2025 bis 04.11.2035
Effizienzklasse
F
Endenergiebedarf
197,92 kWh/(m²·a)
Weitere Energiedaten
Energieträger
Gas
Heizungsart
offener Kamin
Details
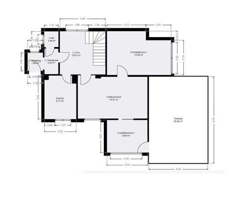
Objektbeschreibung
Dieses massive Einfamilienhaus aus dem Jahr 1959 befindet sich in einer wunderschönen und ruhigen Siedlungslage im begehrten Dresdner Stadtteil Rochwitz. Eingebettet in eine gepflegte Nachbarschaft am grünen Elbhang überzeugt die Immobilie durch ihre solide Bauweise, ihren gepflegten Zustand und eine großzügige...
Ausstattung
+ Einfamilienhaus (Typ EW/58 - E42)
+ ca. 1.120,00 m² Grundstücksfläche
+ ca. 134,00 m² Wohnfläche
+ voll unterkellert
+ teilweise beheizter Keller (2 Räume)
+ Baujahr ca. 1959
+ Sanierung Treppe und Boden im Flurbereich 2023
+ Terrassensanierung mit Antirutschfliesen 2024
+ großzügiges Wohn- und...
Preisinformation
1 Garagenstellplatz
Weitere Informationen
Sonstiges
Alle in diesem Angebot enthaltenen Angaben, Darstellungen und Preise stammen ausschließlich vom Eigentümer oder eines Dritten. Eine Haftung unseres Unternehmens hierfür ist ausgeschlossen.
Stichworte
Garage vorhanden, Anzahl der Schlafzimmer: 3, Anzahl der Badezimmer: 2, Anzahl Balkone: 1, Bundesland...
Anbieter der Immobilie
Online-ID: 2m3ft56
Referenznummer: 3970
Finde Angebote wie dieses
Hier geht es zu unserem Impressum, den Allgemeinen Geschäftsbedingungen, den Hinweisen zum Datenschutz und nutzungsbasierter Online-Werbung.