
ohne-makler.net - Immobilien selbst vermarkten
Privat von Benjamin Richter
017 ···
Nr. anzeigenPreise & Kosten
Provision für Käufer
provisionsfrei
Abschreibung/Anlage
Denkmalschutz-Afa
Lage
Traumhaftes Wohnen in historischer Idylle - Willkommen in Grimma!
Dieses charmante Städtchen, eingebettet in eine malerische Landschaft, vereint Geschichte, Natur und eine lebendige Gemeinschaft. Entdecken Sie mit uns Ihr neues Zuhause, wo Sie in ein Leben voller Ruhe und Harmonie eintauchen können.
Grimma liegt...
Das Haus
Kategorie
Reihenmittelhaus
Baujahr
1580
Bezug
sofort
Energie & Heizung
Warum sehe ich diese Anzeige? – Du siehst diese Anzeige basierend auf Ihrer Navigation auf unserer Website und den Suchkriterien, die du verwendet hast.
Energieausweis: für diesen Gebäudetyp nicht notwendig
Weitere Energiedaten
Energieträger
Gas
Heizungsart
Etagenheizung
Details
Objektbeschreibung
Ich freue mich, Ihnen dieses einzigartige Wohn- und Geschäftshaus zum Verkauf anbieten zu können. Das historische Gebäude, das im Jahre 1580 erbaut wurde, steht unter Denkmalschutz und bietet somit ein Stück Geschichte in idyllischer Lage.
Das Gebäude bietet vielfältige Nutzungsmöglichkeiten, sei es als Wohnhaus mit...
Ausstattung
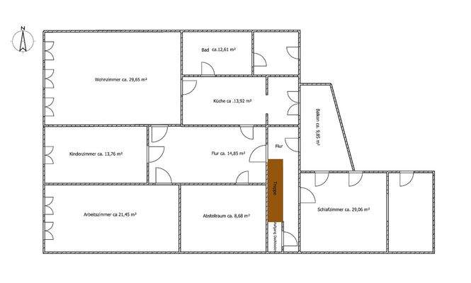
Balkon, Keller, Einbauküche, Fliesen
Bemerkungen:
Die Wohnung ist bestens für eine Familie geeignet:
- inkl. Einbauküche mit hochwertigen Küchengeräten
- Klimaanlage im Schlafzimmer
- Teilfußbodenheizung in der Küche
- SAT- und Kabel-Anschluss, bis zu 400er Internetleitung über Kabel oder DSL
-...
Preisinformation
1 Carportplatz
1 Stellplatz
1 Garagenstellplatz
Weitere Informationen
Sonstiges
Heizungsart: Etagenheizung
Energieträger: Gas
Makleranfragen nicht erwünscht. Nach § 7 UWG sind unaufgeforderte Kontaktaufnahmen durch Makler ohne ausdrückliche Einwilligung des Empfängers verboten!
ohne-makler (OM) ist weder Anbieter noch Vermittler der Immobilie. OM betreibt eine Plattform...
Anbieter der Immobilie
ohne-makler.net - Immobilien selbst vermarkten
Humboldtstr. 25 A, 21509 Glinde
Online-ID: 2m3g555
Referenznummer: 368078
Finde Angebote wie dieses
Hier geht es zu unserem Impressum, den Allgemeinen Geschäftsbedingungen, den Hinweisen zum Datenschutz und nutzungsbasierter Online-Werbung.