
RE/MAX Immobilien - Franziska Schönberg
Frau Franziska Schönberg & Frau Julia Thyssen
004 ···
Nr. anzeigenPreise & Kosten
Provision für Käufer
3,57
Lage
Das Wohn- und Geschäftshaus befindet sich in einer attraktiven und belebten Gegend der Stadt Goch im Bundesland Nordrhein-Westfalen. Eingebettet in eine charmante Umgebung bietet diese Lage eine hervorragende Anbindung an die städtische Infrastruktur sowie die umliegende Natur.
Dank der Nähe zum Stadtzentrum genießen...
Das Haus
Baujahr
1965
Energie & Heizung
Warum sehe ich diese Anzeige? – Du siehst diese Anzeige basierend auf Ihrer Navigation auf unserer Website und den Suchkriterien, die du verwendet hast.
Energieausweistyp
Bedarfsausweis
Gebäudetyp
Wohngebäude
Baujahr laut Energieausweis
2006
Wesentliche Energieträger
GAS
Gültigkeit
bis 12.12.2033
Effizienzklasse
E
Endenergiebedarf
144,50 kWh/(m²·a)
Weitere Energiedaten
Haustyp
Massivhaus
Energieträger
Gas
Heizungsart
Zentralheizung
Details
Objektbeschreibung
Dieses attraktive Wohn- und Geschäftshaus aus dem Jahr 1965 überzeugt durch seine zentrale Lage im Herzen von Goch sowie eine solide Bausubstanz und nachhaltige Vermietung. Die Immobilie ist vollständig unterkellert und verfügt über eine Gesamtfläche von ca. 361,58 m², verteilt auf vier Ebenen. Alle Einheiten sind derzeit...
Ausstattung
Wohn-und Geschäftshaus
komplett vermietet
unterkellert
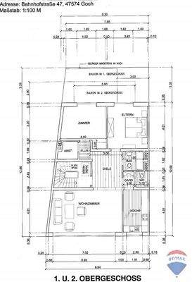
EG: Gewerbefläche 117,12 m2
1. OG 94,81 m² mit Terrasse
2. OG 91,17 m² mit Balkon
DG 58,48 m² mit Loggia
Baujahr 1965
Gasheizung 2006
Zentralheizung
Rollläden
Kunststofffenster doppelt verglast
zentrale Lage in Goch, gut frequentiert
Weitere Informationen
Sonstiges
Verpassen Sie keine Immobilie mehr!
Unser komplettes Immobilienangebot finden Sie immer zuerst auf www.remax.de
Gerne helfen wir Ihnen auch beim Verkauf oder der Vermietung Ihrer Immobilie.
Karriere bei REMAX?
Infos: www.remax.de/karriere
Stichworte
Gesamtfläche: 361,55 m², vermietbare...
Anbieter der Immobilie
RE/MAX Immobilien - Franziska Schönberg
Brückenstraße 1-3, 47574 Goch
Online-ID: 2m3jm5k
Referenznummer: 1051-27-BAFSJT
Finde Angebote wie dieses
Hier geht es zu unserem Impressum, den Allgemeinen Geschäftsbedingungen, den Hinweisen zum Datenschutz und nutzungsbasierter Online-Werbung.