
Thorn Immobilien
Frau Anne Dzaack
004 ···
Nr. anzeigenPreise & Kosten
Provision für Käufer
3,57 % einschließlich MwSt.
Lage
Die Doppelhaushälfte befindet sich im begehrten Potsdamer Stadtteil Bornim - einer gewachsenen, ruhigen und grünen Wohnlage, die durch ihre naturnahe Umgebung und ihre hohe Lebensqualität überzeugt. Bornim ist der ideale Rückzugsort für alle, die naturnah und entspannt wohnen möchten, ohne auf eine gute Anbindung an Potsdam...
Das Haus
Kategorie
Doppelhaushälfte
Baujahr
1958
Energie & Heizung
Warum sehe ich diese Anzeige? – Du siehst diese Anzeige basierend auf Ihrer Navigation auf unserer Website und den Suchkriterien, die du verwendet hast.
Weitere Energiedaten
Energieträger
Öl
Heizungsart
Zentralheizung
Details
Objektbeschreibung
Doppelhaushälfte mit großem Potenzial in ruhiger Lage von Potsdam
In der begehrten Max-Eyth-Allee erwartet Sie eine seltene Gelegenheit:
Diese charmante Doppelhaushälfte bietet Ihnen viel Platz, gestalterische Freiheit und die Möglichkeit, Ihr neues Zuhause ganz nach Ihren Wünschen zu...
Ausstattung
Ihr neues Zuhause mit Gestaltungsfreiheit - viel Platz, viele Möglichkeiten!
Sie suchen ein Haus, das Sie ganz nach Ihren eigenen Vorstellungen gestalten können? Diese Immobilie bietet Ihnen nicht nur eine solide Basis, sondern auch jede Menge Raum, um Ihren Wohntraum zu verwirklichen.
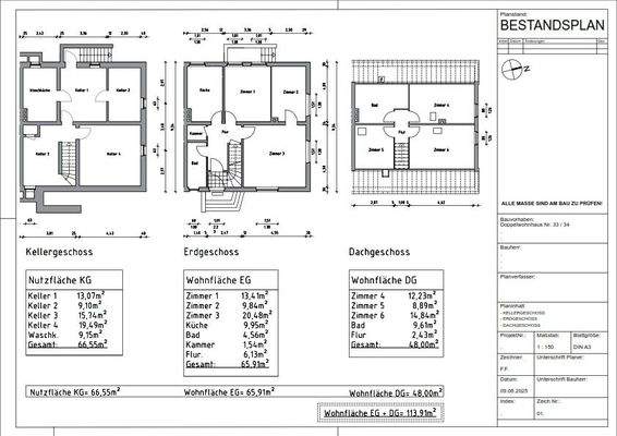
Kellergeschoss - Stauraum...
Weitere Informationen
Stichworte
Nutzfläche: 66,55 m², Anzahl der Schlafzimmer: 5, Anzahl der Badezimmer: 2, Anzahl der separaten WCs: 1, 2 Etagen
Anbieter der Immobilie
Online-ID: 2m3kh5l
Referenznummer: 203
Finde Angebote wie dieses
Hier geht es zu unserem Impressum, den Allgemeinen Geschäftsbedingungen, den Hinweisen zum Datenschutz und nutzungsbasierter Online-Werbung.