Echtes Grundstück mit Ausblick in RT-Altenburg - Bestpreisgarantie bei Bien-Zenker
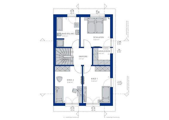
Diese tolle Doppelhaushälfte wird Sie begeistern. Mit einer Breite von knapp 7,4 bietet sie Einfamilienhaus-Feeling zu den Kosten einer Wohnung. Der großzügige Wohn- und Essbereich mit toller offener Wohnküche wird Sie begeistern. Im Obergeschoss finden sich ein geräumiges Bad, das Eltern-Schlafzimmer und zwei große Kinderzimmer mit viel Platz zum Spielen.
Lassen Sie sich von mir beraten, welche Möglichkeiten Sie auf diesem Grundstück haben.
Erfahren Sie jetzt mehr über tolle Förder- und Finanzierungsmöglichkeiten.
Merkmale
301 m² Grundstück
Das Haus wird in bekannter Bien-Zenker Qualität schlüsselfertig angeboten.
Im Preis enthalten:
* Effizienzhaus 40 plus * Flachdach * Keller * Fenster mit 3-fach-Isolierverglasung, mit exzellentem Wärme- und Schalldämmschutz * ökologische und nachhaltige Fertig-Bauweise * Planungswünsche können noch berücksichtigt werden! * Wohlfühl-Klima-Heizung * Sanitär- und Elektroinstallation
Gerne beraten wir Sie mit unserem unabhängigen Finanzierungsspezialisten!
Grundrisse
Grundrisse
1 / 2
Virtueller Rundgang
Video
Realisiere Dein Projekt
Bausubstanz und Energie
Möchtest du Details zum Energieverbrauch?
Zustand der ImmobilieProjektiert
Preisdetails
Kaufpreis
765000 €765.000 €
5.275,86 €/m²
Provision für Käufer
Bei Abschluss eines Kaufvertrages wird eine Vermittlungs-/ Nachweisprovision in Höhe von 5,8 % inklusive 19 % Mehrwertsteuer auf den Kaufpreis vom Käufer fällig.
Geschätzte Gesamtkosten
845.860 €1
Kaufpreis
765.000 €
Kaufnebenkosten
80.860 €
2
Notarkosten (1,5%)
11.475 €
Grunderwerbsteuer (5%)
38.250 €
Provision für Käufer (3,57%)
27.310 €
Grundbucheintrag (0,5%)
3.825 €
1Der angezeigte Wert ist eine automatisch berechnete Schätzung von immowelt.
2Bei den Angaben handelt es sich um ortsübliche Werte. Individuelle Kosten können abweichen.
Lage
Altenburg, Reutlingen (72768)
Der Anbieter hat die genaue Adresse nicht freigegeben
Trotz der ruhigen Lage des Grundstücks ist die Anbindung hervorragend - die Innenstadt von Reutlingen mit allen Einkaufsmöglichkeiten als auch Schulen, Kindergärten, Ärzte und Apotheken ist rasch erreichbar. Die Nähe zur B 464 ermöglicht eine schnelle Erreichbarkeit in die gesamte Region und darüber hinaus.
Weitere Informationen
Sonstiges
Wir schätzen Ihr Interesse an unserem Grundstücksangebot und möchten darauf hinweisen, dass wir aus verschiedenen Gründen die genaue Adresse des Grundstücks erst in einem persönlichen Gespräch bekannt geben können. Dies dient sowohl Ihrem als auch unserem Schutz, um sicherzustellen, dass wir Ihre Anfrage bestmöglich bearbeiten können.
Kontaktangaben sind wichtig: Bitte stellen Sie sicher, dass Sie uns Ihre vollständigen Kontaktdaten zur Verfügung stellen. Anfragen ohne vollständige Kontaktdaten können aus organisatorischen Gründen nicht bearbeitet werden.
Kommission oder Direktverkauf: Wir möchten darauf hinweisen, dass das angebotene Grundstück entweder in Kommission angeboten wird oder direkt von Dritten verkauft wird. Dies kann bedeuten, dass der oben genannte Preis aufgrund der aktuellen Marktsituationen variieren kann.
Maklercourtage: Bitte beachten Sie, dass bei diesem Grundstücksangebot gegebenenfalls eine zusätzliche Maklercourtage anfallen kann. Die genauen Bedingungen hierfür werden im persönlich
Die Fertighaus Profis - https://diefertighausprofis.de/