

pro domo Hausverwaltungsgesellschaft mbH
Frau Katrin Eberhardt
036 ···
Nr. anzeigenPreise & Kosten
Kaution
964
Warum sehe ich diese Anzeige? – Du siehst diese Anzeige basierend auf Ihrer Navigation auf unserer Website und den Suchkriterien, die du verwendet hast.
Lage
bevorzugte Wohnlage
Schule, Kindertagesstätte, Krankenhaus und Berufsakademie in fußläufiger Entfernung
Bad, Hallenbad und Sportstätten in unmittelbarer Umgebung
sehr gute Anbindung an den öffentlichen Personennahverkehr
Die Wohnung
Wohnungslage
Dachgeschoss
Bezug
01.03.2026
Wohnanlage
Energie & Heizung
Warum sehe ich diese Anzeige? – Du siehst diese Anzeige basierend auf Ihrer Navigation auf unserer Website und den Suchkriterien, die du verwendet hast.
Energieausweistyp
Verbrauchsausweis
Gebäudetyp
Wohngebäude
Baujahr laut Energieausweis
1998
Wesentliche Energieträger
Gas
Gültigkeit
07.06.2021 bis 06.06.2031
Effizienzklasse
C
Endenergieverbrauch
77,70 kWh/(m²·a)
Weitere Energiedaten
Energieträger
Gas
Heizungsart
Zentralheizung
Details
Objektbeschreibung
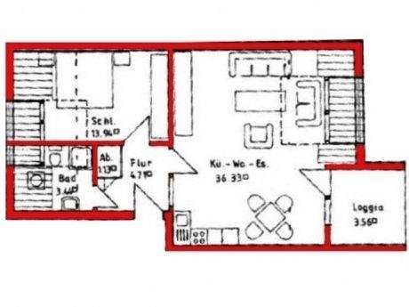
geräumige 2-Raumwohnung mit Balkon in attraktiver Wohnanlage
Ausstattung
Wohnzimmer mit Balkonausgang
Schlafzimmer
die Küche ist vollständig gefliest
Bad mit Dusche, WC, Waschtisch und Waschmaschinenanschluss
Flur
Balkon
Kellerraum Nr. 11
PKW-Außenstellplatz 36
Weitere Informationen
Sonstiges
Info: Anzahl Etagen: 4
Fahrradkeller
Trockenraum
Gemeinschaftsantenne
Hausmeisterservice
Zustand: renoviert
Alle Angaben sind ca. Angaben und können von den tatsächlichen Werten abweichen.
Das vorliegende Angebot ist freibleibend und unverbindlich.
Die Angaben zum Objekt stammen...
Anbieter der Immobilie
pro domo Hausverwaltungsgesellschaft mbH
Karolinenstr. 8, 99817 Eisenach

Online-ID: 2m3nl5m
Referenznummer: 141633
Finde Angebote wie dieses
Hier geht es zu unserem Impressum, den Allgemeinen Geschäftsbedingungen, den Hinweisen zum Datenschutz und nutzungsbasierter Online-Werbung.