
m² Immobilien GmbH
Herr Hans Buchs
004 ···
Nr. anzeigenPreise & Kosten
Provision für Käufer
2,98 % inkl. MwSt. inkl. MwSt.
Lage
Die Immobilie befindet sich in einer ruhigen Seitenstraße in fußläufiger Nähe zur Remscheider Innenstadt. Große Laubbäume prägen das Straßenbild, während die großzügige Dachterrasse mit Südausrichtung sonnige Stunden bis in den Abend garantiert.
Remscheid - im Herzen des Bergischen Landes - bietet ein attraktives...
Das Haus
Baujahr
1980
Bezug
nach Vereinbarung
Energie & Heizung
Warum sehe ich diese Anzeige? – Du siehst diese Anzeige basierend auf Ihrer Navigation auf unserer Website und den Suchkriterien, die du verwendet hast.
Energieausweistyp
Verbrauchsausweis
Gebäudetyp
Wohngebäude
Baujahr laut Energieausweis
1980
Wesentliche Energieträger
GAS
Gültigkeit
bis 21.02.2032
Effizienzklasse
F
Endenergieverbrauch
162,50 kWh/(m²·a)
Weitere Energiedaten
Energieträger
Gas
Heizungsart
Fußbodenheizung
Details
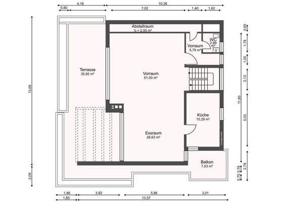
Objektbeschreibung
Sehr geehrte/r Interessent/in,
wir möchten Ihnen hier eine exklusive und großzügige immobilie vorstellen, die mehr Platz und Komfort bietet, als so manches Haus. Diese tolle Immobilie, im sogenannten "Haus im Haus" Stil, bietet auf rund 244 m² Wohnfläche ein außergewöhnliches Wohnambiente über drei Ebenen. Das Gebäude...
Ausstattung
.ca. 244 m² Wohnfläche
.Dachterrasse (Südwestlage, ca. 51 m²)
.überdachter Freisitz / Wintergarten
.großzügiger Wohn-/Essbereich mit Kamin
.Einbau- und Abstellmöglichkeiten
.Marmorbadezimmer
.weitläufige Galerie
.Glasfaseranschluss vorhanden
.sehr großer Fitnessraum mit Dusche
.drei...
Preisinformation
3 Garagenstellplätze, Kaufpreis je: 10.000,00 EUR
Weitere Informationen
Sonstiges
RECHTSHINWEIS
Da wir Objektangaben nicht selbst ermitteln, übernehmen wir hierfür keine Gewähr. Dieses Exposé ist nur für Sie persönlich bestimmt. Eine Weitergabe an Dritte ist an unsere ausdrückliche Zustimmung gebunden und unterbindet nicht unseren Provisionsanspruch bei Zustandekommen eines Vertrages. Alle...
Anbieter der Immobilie
m² Immobilien GmbH
Gräfrather Markt 4, 42653 Solingen
Online-ID: 2m3nq5c
Referenznummer: 4982
Finde Angebote wie dieses
Hier geht es zu unserem Impressum, den Allgemeinen Geschäftsbedingungen, den Hinweisen zum Datenschutz und nutzungsbasierter Online-Werbung.