

Spiegelfeld Immobilien GmbH
Frau Sabrina Ritter
+43 ···
Nr. anzeigenPreise & Kosten
inkl. Betriebskosten
Provision für Mieter
Gemäß Erstauftraggeberprinzip bezahlt der Abgeber die Provision.
Warum sehe ich diese Anzeige? – Du siehst diese Anzeige basierend auf Ihrer Navigation auf unserer Website und den Suchkriterien, die du verwendet hast.
Lage
Gonzagagasse
Die Wohnung
Wohnungslage
1. Geschoss (Dachgeschoss)
Bezug
ab sofort
Wohnanlage
Energie & Heizung
Warum sehe ich diese Anzeige? – Du siehst diese Anzeige basierend auf Ihrer Navigation auf unserer Website und den Suchkriterien, die du verwendet hast.
Heizwärmebedarf (HWB)
72,40 kWh/(m²·a)
Gesamtenergieeffizienz (fGEE)
1,56
Weitere Energiedaten
Energieträger
Fernwärme
Heizungsart
Fußbodenheizung
Details
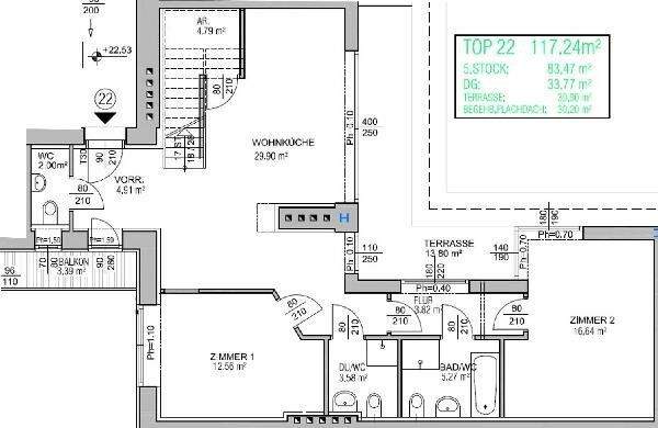
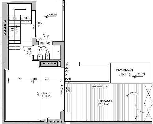
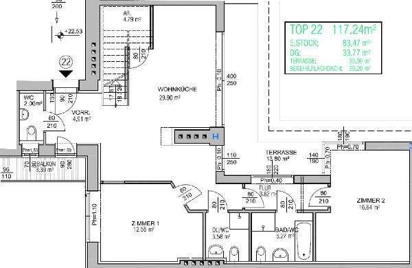
Objektbeschreibung
In ausgezeichneter Lage des 1. Bezirks, unweit der Börse und des Rudolfsplatzes, wurde im Jahr 2010 das Dachgeschoss eines stilvollen Altbaus hochwertig ausgebaut. Besonders hervorzuheben ist der durchdachte Grundriss der Wohnung, der vollständig auf Dachschrägen verzichtet und somit ein großzügiges, elegantes Raumgefühl...
Preisinformation
Nettokaltmiete: 2.593,72 EUR
Weitere Informationen
Sonstiges
Lageplan Nähe - https://www.wien.gv.at/stadtplan/grafik.aspx?lang=de-AT&bookmark=44hnRvk7NkaT41BEsQGxQ-c-a5R5lmRHGmmkeu25v6MR8sgSldDPoK
Stichworte
Anzahl der Badezimmer: 3, Anzahl der separaten WCs: 4, Anzahl Balkone: 1, Anzahl Terrassen: 3, Balkon-Terrassen-Fläche: 43,00 m², Bundesland: Wien, 2...
Anbieter der Immobilie

Spiegelfeld Immobilien GmbH
Stubenring 20, 1010 WIEN

Online-ID: 2m3pt5j
Referenznummer: OBGC202510141036131307aa2787ff0
Finde Angebote wie dieses
Hier geht es zu unserem Impressum, den Allgemeinen Geschäftsbedingungen, den Hinweisen zum Datenschutz und nutzungsbasierter Online-Werbung.