
Inseriert auf 123provisionsfrei.de
Ceyhan Yildirim
+49 ···
Nr. anzeigenPreise & Kosten
nicht in Warmmiete enthalten
Kaution
2547
Provision für Mieter
provisionsfrei
Warum sehe ich diese Anzeige? – Du siehst diese Anzeige basierend auf Ihrer Navigation auf unserer Website und den Suchkriterien, die du verwendet hast.
Lage
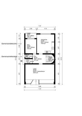
Die Gewerbefläche befindet sich im Herzen von Pulheim-Brauweiler, einer zentralen und gut frequentierten Lage. Die Umgebung zeichnet sich durch eine hohe Sichtbarkeit sowie eine sehr gute Erreichbarkeit aus und ist besonders attraktiv für Unternehmen mit Kundenverkehr oder Laufkundschaft.
Die Ladenfläche
Kategorie
Laden
Baujahr
1965
Details
Objektbeschreibung
Die angebotene Gewerbefläche mit einer Größe von 29,53 m² eignet sich ideal als Büro, Praxis, Studio oder Dienstleistungsfläche. Das Objekt wurde kernsaniert und befindet sich in einem modernen sowie äußerst gepflegten Zustand. Der helle Hauptraum bietet eine angenehme Arbeitsatmosphäre und flexible Nutzungsmöglichkeiten.
Ausstattung
Der Hauptraum ist mit Heizkörpern ausgestattet und sorgt für eine zuverlässige Beheizung. In den gemeinschaftlich genutzten Bereichen, bestehend aus einer modernen Gemeinschaftsküche sowie einer gepflegten Gemeinschaftstoilette, ist eine Fußbodenheizung installiert, die zusätzlichen Komfort bietet.
Große Fensterflächen...
Weitere Informationen
Sonstiges
Die Anmietung des Ladens ist ohne mehrjährige Vertragsbindung möglich. Nach Kündigung beträgt die Auszugsfrist sechs Monate!
Sollte die Ladenfläche nicht ausreichen, kann künftig nach der Renovierung ein Kellerraum extern als Zimmer angemietet werden. Energieausweis liegt zur Besichtigung...
Anbieter der Immobilie
Inseriert auf 123provisionsfrei.de
Helmstedter Str. 16, 38448 Wolfsburg
Online-ID: 2m3q55t
Referenznummer: 87418365-3#RuxkW
Finde Angebote wie dieses
Hier geht es zu unserem Impressum, den Allgemeinen Geschäftsbedingungen, den Hinweisen zum Datenschutz und nutzungsbasierter Online-Werbung.