
KLN e.K.
Herr Avi Manachimov
+49 ···
Nr. anzeigenPreise & Kosten
Provision für Käufer
provisionsfrei
Lage
In Trudering fängt das grüne Umland von München an. Und seitdem es hier keinen Flughafen mehr gibt, können die Truderinger das in aller Ruhe genießen - und leben trotzdem in der Stadt.
Vor allem Ein- und Zweifamilienhäuser, die nach 1950 gebaut wurden, dominieren inzwischen das Stadtbild in Trudering.
Das...
Die Wohnung
Wohnungslage
1. Geschoss
Bezug
sofort
Wohnanlage
Energie & Heizung
Warum sehe ich diese Anzeige? – Du siehst diese Anzeige basierend auf Ihrer Navigation auf unserer Website und den Suchkriterien, die du verwendet hast.
Energieausweistyp
Bedarfsausweis
Gebäudetyp
Wohngebäude
Baujahr laut Energieausweis
2023
Wesentliche Energieträger
Strom-Mix
Effizienzklasse
A+
Endenergiebedarf
27,80 kWh/(m²·a)
Weitere Energiedaten
Heizungsart
Fußbodenheizung, Luft-/Wasser-Wärmepumpe
Details
Objektbeschreibung
Dieses exklusive Neubau-Mehrfamilienhaus umfasst insgesamt zehn Wohneinheiten - acht 2-Zimmer- und zwei 3-Zimmer-Wohnungen. Es verbindet moderne Architektur mit durchdachtem Wohnkomfort.
Die hellen, lichtdurchfluteten Wohnungen bieten viel Raum für persönliche Entfaltung und Privatsphäre.
Besonderer Wert wurde auf...
Ausstattung
WE 7
2 Zimmer ca. 56 m²
Kaufpreis: 690.000 EUR
Heizungsart: Betonkern aktivierte Deckenheizung
barrierefrei
Balkon
offene Küche im Wohnbereich
Duschbad mit Fenster
Abstellraum
Kellerabteil
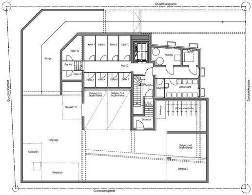
6 Duplex-Stellplätze KP: 26.000 EUR
4 TG-Stellplätze KP: 36.000 EUR
Weitere Informationen
Sonstiges
Der Eigentümer hat uns beauftragt, den Verkauf seiner Immobilie zu koordinieren und zu vermitteln
Auf Wunsch des Eigentümers und aus formellen Gründen bitten wir ausdrücklich, von direkten Kontakten abzusehen und Besichtigungstermine sowie Informationsgespräche ausschließlich über unser Haus zu...
Anbieter der Immobilie
KLN e.K.
Hochbrückenstr. 8, 80331 München
Online-ID: 2m3qp5y
Referenznummer: 3667
Finde Angebote wie dieses
Hier geht es zu unserem Impressum, den Allgemeinen Geschäftsbedingungen, den Hinweisen zum Datenschutz und nutzungsbasierter Online-Werbung.