
Gemmer Immobilien & Hausverwaltungen
Immobilien Gemmer Hausverwaltungen Volkhard Gemmer
+49 ···
Nr. anzeigenPreise & Kosten
Verhandlungsbasis
Provision für Käufer
Es werden 3,57% (inkl. 19% MwSt.) Provision jeweils von Käufer und Verkäufer verlangt.
Lage
Attraktive Wohnlage in Hambach - ländliche Ruhe mit optimaler Anbindung
Hambach überzeugt durch seinen dörflichen Charme, eine ruhige Wohnatmosphäre und ein intaktes Gemeinschaftsgefühl. Umgeben von Natur bietet der Ort ideale Voraussetzungen für alle, die naturnah wohnen und dennoch nicht auf eine gute Infrastruktur...
Das Haus
Kategorie
Einfamilienhaus
Baujahr
1900
Energie & Heizung
Warum sehe ich diese Anzeige? – Du siehst diese Anzeige basierend auf Ihrer Navigation auf unserer Website und den Suchkriterien, die du verwendet hast.
Energieausweistyp
Verbrauchsausweis
Gebäudetyp
Wohngebäude
Baujahr laut Energieausweis
2000
Gültigkeit
26.11.2025 bis 26.11.2035
Effizienzklasse
E
Endenergieverbrauch
144,60 kWh/(m²·a)
Weitere Energiedaten
Energieträger
Öl
Details
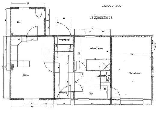
Objektbeschreibung
Außergewöhnliches Anwesen für Handwerker, Hobbyisten und Gartenliebhaber - top gepflegtes Einfamilienhaus in Hambach
Dieses äußerst gepflegte Einfamilienhaus auf einem großzügigen Grundstück von ca. 818 m² überzeugt durch seinen hervorragenden Gesamtzustand, vielseitige Nutzungsmöglichkeiten und eine zentrale Lage in...
Ausstattung
6 Zimmer,
2 Bäder, 1 Wannen- und 1 Duschbad, jeweils mit Tageslicht
Einbauküche
Die Beheizung erfolgt über eine vorhandene Öl-Zentralheizung im Bestand. Für die bestehende Anlage besteht nach aktuellem Gebäudeenergiegesetz keine Austauschpflicht bei Eigentumswechsel.
Preisinformation
3 Garagenstellplätze
Weitere Informationen
Sonstiges
Das Objekt wird noch von den Eigentümern bewohnt. Die Freistellung erfolgt nach Absprache.
Bitte nehmen Sie Kontakt mit uns auf, wenn Sie weitere Fragen zur Immobilie haben oder einen unverbindlichen Besichtigungstermin vereinbaren möchten.
Anbieter der Immobilie
Gemmer Immobilien & Hausverwaltungen
Limburger Str. 140, 65582 Diez
Online-ID: 2m3rg5x
Referenznummer: 888 (1/684)
Finde Angebote wie dieses
Hier geht es zu unserem Impressum, den Allgemeinen Geschäftsbedingungen, den Hinweisen zum Datenschutz und nutzungsbasierter Online-Werbung.