

IL GLOBO SRL
Herr Borghi Luigi
003 ···
Nr. anzeigenPreise & Kosten
Provision für Käufer
Bitte beachte, das Angebot beinhaltet bei Vertragsabschluss die Zahlung einer Provision. Weitere Informationen erhältst Du vom Anbieter.
Das Haus
Derzeitige Nutzung
frei
Energie & Heizung
Warum sehe ich diese Anzeige? – Du siehst diese Anzeige basierend auf Ihrer Navigation auf unserer Website und den Suchkriterien, die du verwendet hast.
Gebäudetyp
Wohngebäude
Details
Objektbeschreibung
Rif.1012
Grandola ed Uniti
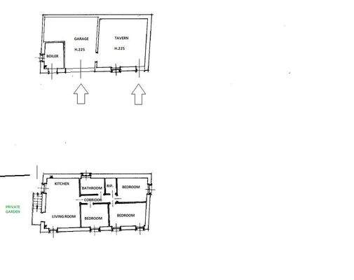
Freistehendes Haus mit 110 m² Wohnfläche
600 m² großer Privatgarten mit Zufahrtsstraße
25 m² großer Wohnraum und 28 m² Garage im Erdgeschoss
Hausautomation
Klimaanlage
Dachboden als Abstellraum
Entdecken Sie dieses prächtige Einfamilienhaus mit ca. 110 m² Wohnfläche...
Anbieter der Immobilie
IL GLOBO SRL
Via Ramazzotti 20, 20900 MONZA

Online-ID: 2m3rh53
Referenznummer: 1012
Finde Angebote wie dieses
Hier geht es zu unserem Impressum, den Allgemeinen Geschäftsbedingungen, den Hinweisen zum Datenschutz und nutzungsbasierter Online-Werbung.