
Wohnungsmarkt Erzgebirge
Herr Mario Deckert
037 ···
Nr. anzeigenPreise & Kosten
in Warmmiete enthalten
Kaution
816,00 €
Warum sehe ich diese Anzeige? – Du siehst diese Anzeige basierend auf Ihrer Navigation auf unserer Website und den Suchkriterien, die du verwendet hast.
Lage
Antonshöhe ist ein Ortsteil von Breitenbrunn im Erzgebirge. In ca. 5-10 min mit dem PKW erreicht man die Stadt Breitenbrunn und Schwarzenberg und somit auch Schulen, Einkaufsmöglichkeiten, sowie Kindergärten, Ärzte usw.
In Antonshöhe lässt es sich ruhig und gediegen leben. Wenig Verkehr und wenig Lärm sorgen hier für die...
Die Wohnung
Wohnungslage
1. Geschoss
Derzeitige Nutzung
frei
Wohnanlage
Energie & Heizung
Warum sehe ich diese Anzeige? – Du siehst diese Anzeige basierend auf Ihrer Navigation auf unserer Website und den Suchkriterien, die du verwendet hast.
Energieausweistyp
Bedarfsausweis
Gebäudetyp
Wohngebäude
Baujahr laut Energieausweis
1950
Wesentliche Energieträger
Gas
Gültigkeit
21.07.2014 bis 21.07.2024
Effizienzklasse
D
Endenergiebedarf
103,10 kWh/(m²·a)
Weitere Energiedaten
Energieträger
Gas
Heizungsart
Zentralheizung
Details
Objektbeschreibung
Suchen sie Ruhe und Natur zum entspannten Wohnen? Dann ist diese Wohnung genau richtig für sie!
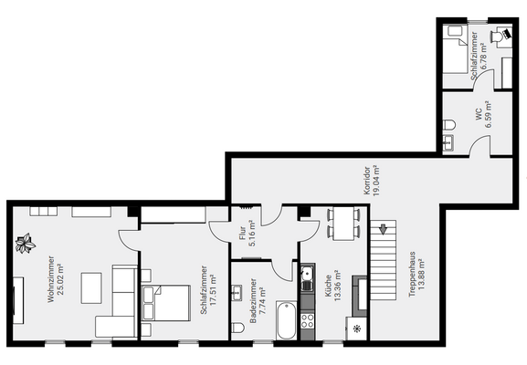
Zur Vermietung steht eine schöne und ruhig gelegene 3-Raum Wohnung im OT Antonshöhe. Diese befindet sich im 1. Obergeschoss und verfügt über ca. 74m² Wohnfläche. Über den Flur gelangt man zur Küche, zum Badezimmer mit...
Weitere Informationen
Sonstiges
Weitere Auskünfte erhalten Sie gern auf Nachfrage.
Besichtigungstermine sind ausschließlich mit uns zu vereinbaren und in unserer Anwesenheit durchzuführen.
Alle hier gemachten Angaben beziehen sich auf Aussagen der Eigentümer, so dass wir trotz sorgfältiger Prüfung keinerlei Haftung für deren Richtigkeit...
Anbieter der Immobilie

Wohnungsmarkt Erzgebirge
Robert - Blum - Str. 23, 09456 Annaberg - B.
Online-ID: 2m3tf5e
Referenznummer: 163271858#OkrsQc
Finde Angebote wie dieses
Hier geht es zu unserem Impressum, den Allgemeinen Geschäftsbedingungen, den Hinweisen zum Datenschutz und nutzungsbasierter Online-Werbung.