

Volksbank Zwickau eG
Frau Stefanie Schulze
037 ···
Nr. anzeigenPreise & Kosten
Provision für Käufer
3,570 % inkl. MwSt.
Lage
Das Reihenendhaus liegt in Zwickau-Auerbach, einer sehr beliebten Wohnlage, die ruhig und dennoch zentrumsnah ist. In unmittelbarer Nähe befindet sich eine Kita, eine Grundschule und verschiedene Einkaufsmöglichkeiten. Durch eine sehr gute Anbindung an öffentliche Verkehrsmittel gelangt man schnell in die Zwickauer Innenstadt...
Das Haus
Kategorie
Reihenendhaus
Geschosse
3 Geschosse
Baujahr
1925
Bezug
nach Absprache
Derzeitige Nutzung
frei
Energie & Heizung
Warum sehe ich diese Anzeige? – Du siehst diese Anzeige basierend auf Ihrer Navigation auf unserer Website und den Suchkriterien, die du verwendet hast.
Energieausweistyp
Bedarfsausweis
Gebäudetyp
Wohngebäude
Baujahr laut Energieausweis
1925
Wesentliche Energieträger
Heizöl
Gültigkeit
16.10.2023 bis 15.10.2033
Effizienzklasse
H
Endenergiebedarf
279,90 kWh/(m²·a)
Weitere Energiedaten
Energieträger
Gas, Öl
Details
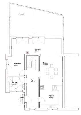
Objektbeschreibung
Dieses Reihenendhaus liegt in einer begehrten, ruhigen Wohnlage und bietet Ihnen volle Gestaltungsfreiheit!
Es ist derzeit im Rohbauzustand und hat ideale Voraussetzungen, um zu ihrem Traumhaus mit individuellem Charakter zu werden!
Zusätzlich zum Bestandshaus wurde ein Anbau errichtet, um mehr Wohnfläche zu schaffen...
Ausstattung
- Sanierungsobjekt im Rohbau mit Ausbaupotenzial
- Reihenendhaus mit großzügiger Wohnfläche
- neuer Anbau für moderne Wohnkonzepte
- 2-Zimmer-Einliegerwohnung im UG mit Zugang in den Garten
- Garten kann individuell gestaltet werden
- Keller mit Abstellfläche und Heizungsraum
- Erbpachtgrundstück (862,00...
Weitere Informationen
Sonstiges
Alle hier gemachten Beschreibungen beruhen auf Angaben und Unterlagen unseres Kunden für deren Richtigkeit wir keine Haftung übernehmen. Ein genaues Aufmaß der Wohnfläche wurde nicht gemacht.
Der Energieausweis liegt zur Besichtigung vor.
Bitte beachten Sie die jeweils gültigen Anforderungen gemäß...
Anbieter der Immobilie
Volksbank Zwickau eG
Bahnhofstraße 1 A, 08056 Zwickau

Online-ID: 2m3th57
Referenznummer: 0-241
Finde Angebote wie dieses
Hier geht es zu unserem Impressum, den Allgemeinen Geschäftsbedingungen, den Hinweisen zum Datenschutz und nutzungsbasierter Online-Werbung.