
m² Immobilien GmbH
Frau Ramona Dietz
004 ···
Nr. anzeigenPreise & Kosten
Provision für Käufer
3,57 % inkl. gesetzl. MwSt. vom Kaufpreis, fällig nach notarieller Beurkundung inkl. MwSt.
Lage
Der Bungalow befindet sich in einer ruhigen und gewachsenen Wohnlage am Rappenweg in Wuppertal, umgeben von gepflegten Einfamilienhäusern und viel Grün.
Die Umgebung bietet eine ideale Kombination aus Ruhe und guter Erreichbarkeit: Einkaufsmöglichkeiten, Schulen, Kindergärten und Ärzte befinden sich in unmittelbarer...
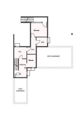
Das Haus
Kategorie
Bungalow
Baujahr
1965
Bezug
nach Absprache
Energie & Heizung
Warum sehe ich diese Anzeige? – Du siehst diese Anzeige basierend auf Ihrer Navigation auf unserer Website und den Suchkriterien, die du verwendet hast.
Weitere Energiedaten
Energieträger
Öl
Heizungsart
Zentralheizung
Details
Objektbeschreibung
Dieser klassische Winkelbungalow aus dem Jahr 1965 wurde in solider Massivbauweise errichtet und überzeugt durch seine durchdachte Raumaufteilung sowie das großzügige Platzangebot - ideal für Paare oder Familien, die das Wohnen auf einer Ebene schätzen.
Vom zentralen Eingangsbereich mit Diele und Flur öffnen sich die...
Preisinformation
1 Stellplatz
1 Garagenstellplatz
Weitere Informationen
Sonstiges
RECHTSHINWEIS
Da wir Objektangaben nicht selbst ermitteln, übernehmen wir hierfür keine Gewähr. Dieses Exposé ist nur für Sie persönlich bestimmt. Eine Weitergabe an Dritte ist an unsere ausdrückliche Zustimmung gebunden und unterbindet nicht unseren Provisionsanspruch bei Zustandekommen eines Vertrages. Alle...
Anbieter der Immobilie
m² Immobilien GmbH
Gräfrather Markt 4, 42653 Solingen
Online-ID: 2m3up5z
Referenznummer: 5129
Finde Angebote wie dieses
Hier geht es zu unserem Impressum, den Allgemeinen Geschäftsbedingungen, den Hinweisen zum Datenschutz und nutzungsbasierter Online-Werbung.