Living Fertighaus GmbH - Jessica N‘Guer

Frau Jessica N'Guer

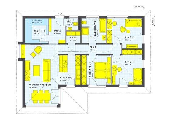
ALLES AUF EINER EBENE - EIN BUNGALOW DER SPASS MACHT! PREIS INKL. GRUNDSTÜCK IN SCHWARZENHOLZ

€ 489.000
Kaufpreis
110 m²
Wohnfläche ca.
4
Zimmer
523 m²
Grundstücksfl. ca.

Der Anbieter dieses Objekts hat gegenüber der AVIV Germany GmbH als Betreiber dieses Online-Marktplatzes erklärt, nicht als Unternehmer im Sinne des § 1 KSchG zu handeln. Die im Verbraucherschutzrecht der Union verankerten Verbraucherrechte (insbesondere Informationspflichten und Rücktritts- bzw. Widerrufsrechte) finden auf den Vertrag zwischen dem Anbieter des Objekts und Ihnen (dem Interessenten) keine Anwendung.

Gewerblicher Anbieter

Der Anbieter dieses Objekts hat gegenüber der AVIV Germany GmbH als Betreiber dieses Online-Marktplatzes erklärt, als Unternehmer im Sinne des § 1 KSchG zu handeln.

AdresseStraße nicht freigegeben
66793 Saarwellingen 
(Schwarzenholz)
Auf Karte ansehen

Preise & Kosten

Kaufpreis € 489.000

Provision für Käufer

Bitte beachte, das Angebot kann bei Vertragsabschluss die Zahlung einer Provision beinhalten. Weitere Informationen erhältst Du vom Anbieter.

Lage

Dieses Grundstück ist ein exklusives Grundstück von uns, im Neubaugebiet in Schwarzenholz, welches ausschließlich mit einem Living Haus bebaubar ist. Wir haben mehrere Grundstücke im Angebot. Ab 328qm bis knapp über 700qm! Alle Grundstücke sind voll erschlossen und direkt bebaubar.

Schwarzenholz, ein Ortsteil der...

Mehr anzeigen

Das Haus

Kategorie

Einfamilienhaus

  • Gäste-WC
  • Einbauküche

Details

Objektbeschreibung

Dieses Living Haus ist ein Ausbauhaus PLUS mit Photovoltaikanlage.
Nur der Innenausbau (Maler, Tapezierer, Bodenbeläge, Innentüren, Fliesenarbeiten und die Endmontage der sanitären Objekte) muss in Eigenregie erfolgen. Selbstverständlich bieten wir hier unsere Hilfe an.

WICHTIG:
Die Materialkosten für den...

Mehr anzeigen

Weitere Informationen

Sonstiges
Entdecke das sichere Ausbauhaus-Konzept von Living Haus. Konzentriere dich auf das, was dir wichtig ist. Wir kümmern uns um den Rest. Deine Vorteile bei Living Haus:
- 18 Monate Festpreisgarantie
- bei fallenden Baupreisen sinkt auch dein Hauspreis
- 30 Jahre Garantie auf die Grundkonstruktion
-...

Mehr anzeigen

Anbieter der Immobilie

Partner

Living Fertighaus GmbH - Jessica N‘Guer

Am Pauschenbaum 18, 66557 Illingen

user

Frau Jessica N'Guer

Dein Ansprechpartner

Anbieter-Website Anbieter-Profil Anbieter-Impressum

Online-ID: 2m3v85y

Referenznummer: 30637-6311

Finde Angebote wie dieses

imageimageimage

Hier geht es zu unserem Impressum, den Allgemeinen Geschäftsbedingungen, den Hinweisen zum Datenschutz und nutzungsbasierter Online-Werbung.