

Peter Peters Immobilien GmbH &Co.KG
Herr Peter Peters
046 ···
Nr. anzeigenPreise & Kosten
Provision für Käufer
3,57% inkl. MwSt.
Lage
Nirgendwo auf Sylt kommen sie sich näher: In Rantum rücken Watt und Westküste ganz eng zusammen. Das 741 Hektar kleine Rantum ist der stille Star im Sylter Verbund, liebt das Understatement und gibt sich sympathisch uneitel, trotz herausragender Stärken. Kenner wissen: Rantum ist sehr viel mehr als nur das dörfliche Vorspiel...
Das Haus
Kategorie
Doppelhaushälfte
Baujahr
2022
Energie & Heizung
Warum sehe ich diese Anzeige? – Du siehst diese Anzeige basierend auf Ihrer Navigation auf unserer Website und den Suchkriterien, die du verwendet hast.
Weitere Energiedaten
Heizungsart
Luft-/Wasser-Wärmepumpe
Details
Objektbeschreibung
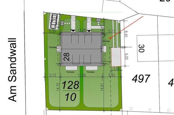
Direkt hinter den Rantumer Dünen steht auf einem Grundstück von ca. 715 m² ein modernes Doppelhaus. Die Haushälfte ist als Ferienhaus genehmigt und liegt traumhaft - nur wenige Schritte vom Strand und dem Söl'ring Hof entfernt.
Die Ausstattung ist hochwertig und ansprechend.
Zu der Einheit gehört ein Außenstellplatz...
Ausstattung
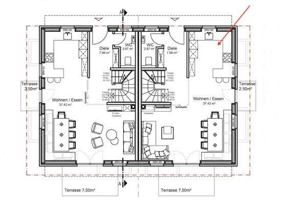
Im Erdgeschoss empfängt Sie eine einladende Diele mit Garderobe und Gäste-WC. Von hier gelangen Sie in das Treppenhaus, von dem Sie das Obergeschoss sowie den Keller erreichen. Geradeaus betreten Sie das helle Wohn- und Esszimmer mit einer modernen Küche. Der Austritt auf die Südterrasse mit dem großzügigen Garten und dem...
Preisinformation
1 Stellplatz
Weitere Informationen
Stichworte
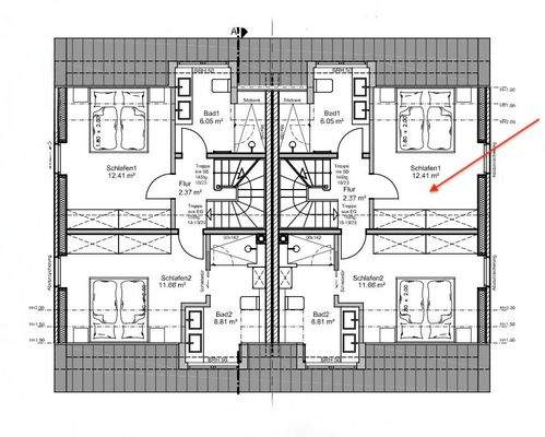
Nutzfläche: 165,00 m², Gesamtfläche: 165,00 m², Anzahl der Schlafzimmer: 2, Anzahl der Badezimmer: 2, Bundesland: Schleswig-Holstein
Anbieter der Immobilie

Online-ID: 2m3ve53
Referenznummer: 2215
Finde Angebote wie dieses
Hier geht es zu unserem Impressum, den Allgemeinen Geschäftsbedingungen, den Hinweisen zum Datenschutz und nutzungsbasierter Online-Werbung.