
Crozilla.com
Biliskov real estate
+38 ···
Nr. anzeigenPreise & Kosten
Provision für Käufer
Bitte beachte, das Angebot kann bei Vertragsabschluss die Zahlung einer Provision beinhalten. Weitere Informationen erhältst Du vom Anbieter.
Das Haus
Baujahr
2016
Details
Objektbeschreibung
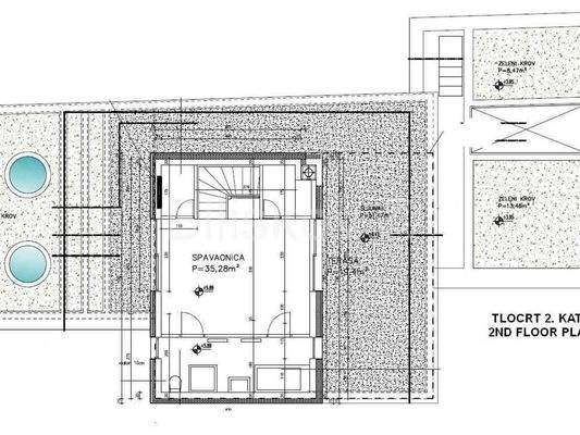
www.biliskov.com ID: 14892Gracani, ZagrebLuxuriöse freistehende Vierzimmer-Villa mit einer Bruttogrundfläche von 274 m, erbaut im Jahr 2016, auf einem Grundstück von 1.111 m gelegen.Die Villa erstreckt sich über vier Etagen und umfasst drei Schlafzimmer, eine Eingangshalle, einen Flur, eine Treppe, vier Terrassen, drei...
Weitere Informationen
Stichworte
Anzahl der Badezimmer: 3, 1 Etagen
Anbieter der Immobilie
Crozilla.com
Nova cesta 60, 10000 ZAGREB
Online-ID: 2m3vw5q
Referenznummer: 18607941_1
Finde Angebote wie dieses
Hier geht es zu unserem Impressum, den Allgemeinen Geschäftsbedingungen, den Hinweisen zum Datenschutz und nutzungsbasierter Online-Werbung.