
Wohnsalon Immobilien GmbH
Frau Betül Cakmak
+43 ···
Nr. anzeigenPreise & Kosten
Provision für Käufer
54.000,00 € inkl. 20% USt.
Lage
Diese attraktive Immobilie befindet sich im begehrten 19. Wiener Gemeindebezirk, bekannt für seine ruhigen Wohngegenden und grünen Oasen. Umgeben von einer freundlichen Nachbarschaft sind Schulen und öffentliche Verkehrsanbindungen wie Buslinien in unmittelbarer Nähe. Hier genießen Sie die perfekte Kombination aus urbanem...
Die Wohnung
Wohnungslage
1. Geschoss
Bezug
Jänner 2028
Wohnanlage
Energie & Heizung
Warum sehe ich diese Anzeige? – Du siehst diese Anzeige basierend auf Ihrer Navigation auf unserer Website und den Suchkriterien, die du verwendet hast.
Heizwärmebedarf (HWB)
29,10 kWh/(m²·a)
Gesamtenergieeffizienz (fGEE)
0,64
Weitere Energiedaten
Energieträger
Solar
Heizungsart
Fußbodenheizung, Luft-/Wasser-Wärmepumpe
Details
Objektbeschreibung
Willkommen in Ihrem neuen Zuhause im exklusiven 19. Bezirk! Diese erstklassige Erstbezugswohnung vereint modernen Wohnkomfort, stilvolle Architektur und eine Lage, die höchste Lebensqualität verspricht.
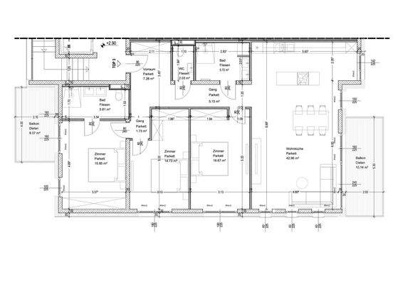
Auf großzügigen 120,08 m² erwartet Sie eine lichtdurchflutete 4-Zimmer-Wohnung, die durchdacht geplant und hochwertig...
Preisinformation
1 Stellplatz
Weitere Informationen
Stichworte
Tiefgarage vorhanden, Ost-West-Balkon/Terrasse, Anzahl der Badezimmer: 2, Anzahl der separaten WCs: 2, Anzahl Balkone: 1, Balkon-Terrassen-Fläche: 18,21 m², Bundesland: Wien, 3 Etagen
Anbieter der Immobilie

Wohnsalon Immobilien GmbH
Mariahilfer Straße 57-59, 1060 WIEN
Online-ID: 2m3x45x
Referenznummer: OBGC20260105073518316dc8f710ee5
Finde Angebote wie dieses
Günstige Immobilienfinanzierung einfach online berechnen
Persönliches Angebot berechnenWarum sehe ich diese Werbung? – Du siehst diese Werbung basierend auf Deiner Navigation auf unserer Website und der von Dir verwendeten Suchkriterien.
Diese Werbung wird bezahlt von durchblicker
Werbung melden
Hier geht es zu unserem Impressum, den Allgemeinen Geschäftsbedingungen, den Hinweisen zum Datenschutz und nutzungsbasierter Online-Werbung.