

Engel & Völkers Immobilien Deutschland GmbH
+49 ···
Nr. anzeigenPreise & Kosten
Provision für Käufer
3.57 % inkl. gesetzl. MwSt.
Der Makler-Vertrag mit uns kommt durch die Bestätigung der Inanspruchnahme unserer Maklertätigkeit in Textform zustande, wie z.B. Weitere Informationen siehe Provisionshinweis.
Lage
Die Baurstraße liegt im Herzen des charmanten Hamburger Stadtteils Groß Flottbek und verbindet urbane Infrastruktur mit naturnaher Lebensqualität. Groß Flottbek zählt zu den beliebtesten Wohngegenden der Hansestadt - geprägt von gepflegten Villen, Rotklinkerbauten und großzügigen Gärten, die dem Viertel seinen...
Das Haus
Kategorie
Einfamilienhaus
Geschosse
2 Geschosse
Baujahr
1928
Energie & Heizung
Warum sehe ich diese Anzeige? – Du siehst diese Anzeige basierend auf Ihrer Navigation auf unserer Website und den Suchkriterien, die du verwendet hast.
Energieausweis: für diesen Gebäudetyp nicht notwendig
Details
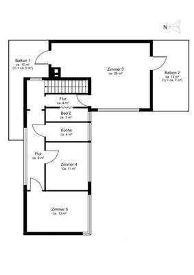
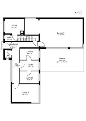
Objektbeschreibung
Dieses freistehende, denkmalgeschützte Einfamilienhaus ist in architektonischer wie historischer Hinsicht ein echtes Unikat. Entworfen und erbaut in den Jahren 1928-1929 vom renommierten Bauhaus-Architekten Karl Schneider, zählt es bis heute zu den bedeutendsten Wohnbauten der klassischen Moderne in Hamburg. Unter dem Namen...
Weitere Informationen
Provisionshinweis
3.57 % inkl. gesetzl. MwSt.
Der Makler-Vertrag mit uns kommt durch die Bestätigung der Inanspruchnahme unserer Maklertätigkeit in Textform zustande, wie z.B. insbesondere die Unterschrift des Suchkundenvertrages und/oder des Objekt-Exposés. Die Höhe der Courtage richtet sich nach den seit dem...
Anbieter der Immobilie
Online-ID: 2m3y65n
Referenznummer: I-047PNH-W-047PNH
Finde Angebote wie dieses
Hier geht es zu unserem Impressum, den Allgemeinen Geschäftsbedingungen, den Hinweisen zum Datenschutz und nutzungsbasierter Online-Werbung.