
Antaris Immobilien GmbH
Frau Sandy Thorwirth
+49 ···
Nr. anzeigenPreise & Kosten
Provision für Mieter
provisionsfrei
Warum sehe ich diese Anzeige? – Du siehst diese Anzeige basierend auf Ihrer Navigation auf unserer Website und den Suchkriterien, die du verwendet hast.
Lage
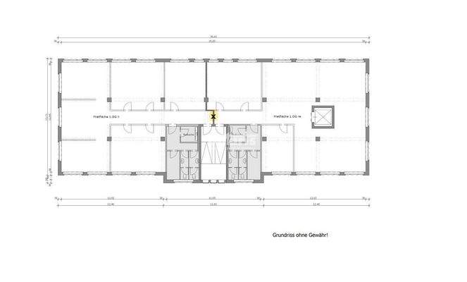
Die zur Vermietung stehende Büroeinheit in der Weimarer Straße 32 bietet eine großzügige Fläche von ca. 442 m², die aktuell als eine zusammengelegte Einheit genutzt wird. Eine Teilung in zwei separate Bereiche von etwa 218 m² bzw. 224 m² ist grundsätzlich möglich, was flexible Nutzungsmöglichkeiten bietet und sich ideal an...
Büro-/Praxisfläche
Kategorie
Bürofläche
Energie & Heizung
Warum sehe ich diese Anzeige? – Du siehst diese Anzeige basierend auf Ihrer Navigation auf unserer Website und den Suchkriterien, die du verwendet hast.
Wärme
Strom
Energieausweistyp
Verbrauchsausweis
Gebäudetyp
Nicht-Wohngebäude
Baujahr laut Energieausweis
1993
Wesentliche Energieträger
Öl
Gültigkeit
09.09.2025 bis 09.09.2035
Endenergieverbrauch (Wärme)
79,80 kWh/(m²·a) - Warmwasser enthalten
Endenergieverbrauch (Strom)
15,20 kWh/(m²·a) - Warmwasser enthalten
Details
Objektbeschreibung
Die zur Vermietung stehende Büroeinheit in der Weimarer Straße 32 bietet eine großzügige Fläche von ca. 442 m², die aktuell als eine zusammengelegte Einheit genutzt wird. Eine Teilung in zwei separate Bereiche von etwa 218 m² bzw. 224 m² ist grundsätzlich möglich, was flexible Nutzungsmöglichkeiten bietet und sich ideal an...
Ausstattung
Die großräumig aufgeteilte Fläche ist mit einem hochwertigen Parkettboden ausgestattet. Getrennte Sanitäreinheiten sowie ein Teeküchenbereich sind vorhanden. Bauliche Veränderungen bzw. Raumunterteilungen sind problemlos möglich.
Die großräumig aufgeteilte Fläche ist mit einem hochwertigen Parkettboden ausgestattet...
Weitere Informationen
Sonstiges
Widerrufsrecht
Sie können Ihre Vertragserklärung innerhalb von 14 Tagen ohne Angaben von Gründen in Textform (z.B. Brief, E-Mail) widerrufen. Die Frist beginnt nach Erhalt dieser Belehrung in Textform, jedoch nicht vor Vertragsabschluss und auch nicht vor Erfüllung unserer Informationspflichten gem. Art. 246 §...
Anbieter der Immobilie
Online-ID: 2m3yg5x
Referenznummer: 14088/Eh2
Finde Angebote wie dieses
Hier geht es zu unserem Impressum, den Allgemeinen Geschäftsbedingungen, den Hinweisen zum Datenschutz und nutzungsbasierter Online-Werbung.