
Haferkamp Immobilien GmbH
Julia Müller
Kontaktiere den Anbieter schriftlich, es ist keine Telefonnummer hinterlegt.
Preise & Kosten
Provision für Mieter
Bitte beachte, das Angebot kann bei Vertragsabschluss die Zahlung einer Provision beinhalten. Weitere Informationen erhältst Du vom Anbieter.
Warum sehe ich diese Anzeige? – Du siehst diese Anzeige basierend auf Ihrer Navigation auf unserer Website und den Suchkriterien, die du verwendet hast.
Lage
Wilstorf ist ein Stadtteil im Hamburger Süden im Bezirk Harburg. Er wird zu Recht "grüner" Stadtteil genannt, denn allein der Außenmühlenteich mit seinen Parkanlagen und die ihn umgebenden Kleingärten nehmen ein Drittel des Stadtteilgebiets ein.
Der Standort verfügt über eine optimale Infrastruktur. Supermärkte, Ärzte...
Büro-/Praxisfläche
Kategorie
Bürogebäude
Bezug
01.03.2026
Geschoss
1. Geschoss
Energie & Heizung
Warum sehe ich diese Anzeige? – Du siehst diese Anzeige basierend auf Ihrer Navigation auf unserer Website und den Suchkriterien, die du verwendet hast.
Wärme
Energieausweistyp
Bedarfsausweis
Gebäudetyp
Nicht-Wohngebäude
Baujahr laut Energieausweis
1994
Endenergiebedarf (Wärme)
203,00 kWh/(m²·a)
Details
Objektbeschreibung
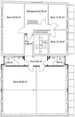
Diese großzügigen Büroflächen befinden sich im ersten Stock eines modernen dreistöckigen Gebäudes in Hamburg Wilstorf Die Einheit verfügt über mehrere große Büroräume mit einer Gesamtfläche von ca. 198,25 m², die flexibel genutzt werden können. Die Büros bieten eine angenehme Raumaufteilung und sind mit großen Fenstern...
Ausstattung
Die Büros sind mit modernen Deckenleuchten und Heizkörpern ausgestattet, die für ein angenehmes Raumklima sorgen. Alle Räume sind mit EDV-Anschlüssen ausgestattet. Ebenfalls kann das große Büro auch aufgeteilt werden. Zudem steht Ihnen eine voll ausgestattete Büroküche zur Verfügung, die ideal für Pausen und Besprechungen...
Weitere Informationen
Sonstiges
Verfügbar ab 01.03.2026
Miete 1.690,00 €
Nebenkosten 550,00 €
Außenprovision 3,57 Brutto-Monatsmieten entspricht 7.996,80 €
Stichworte
Sonstiges: EDV-Verkabelung
Anbieter der Immobilie
Julia Müller
Dein Ansprechpartner
Kontaktiere den Anbieter schriftlich, es ist keine Telefonnummer hinterlegt.
Online-ID: 2m3ys5k
Referenznummer: 170114
Finde Angebote wie dieses
Hier geht es zu unserem Impressum, den Allgemeinen Geschäftsbedingungen, den Hinweisen zum Datenschutz und nutzungsbasierter Online-Werbung.