

Das Immo Team - OWL
Herr Thomas Landau
+49 ···
Nr. anzeigenPreise & Kosten
Provision für Käufer
Käuferprovision 3,57 % vom Kaufpreis, zahlbar nach Beurkundung.
Abschreibung/Anlage
Denkmalschutz-Afa
Lage
Herford-City
Die repräsentative Wohnung befindet sich im Zentrum
Herfords oberhalb des Werreufers. Auf der gegenüberliegenden
Straßenseite beginnt die historische Herforder Altstadt.
Im nächsten Umfeld liegen alle Geschäfte für den täglichen Bedarf, Gaststätten,
Schulen, Kindergärten, Arztpraxen...
Die Wohnung
Wohnungslage
1. Geschoss
Bezug
01.02.2026
Wohnanlage
Energie & Heizung
Warum sehe ich diese Anzeige? – Du siehst diese Anzeige basierend auf Ihrer Navigation auf unserer Website und den Suchkriterien, die du verwendet hast.
Energieausweis: für diesen Gebäudetyp nicht notwendig
Weitere Energiedaten
Energieträger
Gas
Heizungsart
Etagenheizung, offener Kamin
Details
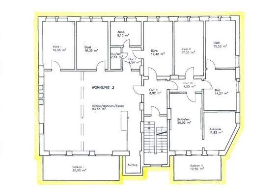
Objektbeschreibung
Im ersten Obergeschoss eines stadtbildprägenden Hauses aus dem
Baujahr 1890 in der Herforder City liegt diese repräsentative ca. 250 m²
große Wohnung.
Die außerordentlich große Wohnung ist baulich (Heizung, Wasser,
Abwasser, Strom) so vorbereitet, dass sie geteilt werden kann.
Im Ergebnis gäbe es dann...
Ausstattung
Einfach schön....
- nach Denkmalschutzaspekten saniertes Gebäude
- neu errichteter Aufzug direkt in die Wohnung
- historische Eingangstüren und Treppenhaus
- Video-Sprechanlage
- zwei Balkone mit Blick in die Grünanlagen
- Bad mit Dusche und Whirlpool
- Gäste-WC mit Dusche
- großzügiger...
Weitere Informationen
Sonstiges
Ansprechpartner
Thomas Landau
Frank Tippelt
Tel. 0521 - 92 37 80
www.DIT-OWL.de
Alle Angaben vom Eigentümer, daher übernehmen wir keine Haftung und Garantie.
Stichworte
Anzahl der Schlafzimmer: 8, Anzahl der Badezimmer: 2, Anzahl Balkone: 2, 1 Etagen, modernisiert: 2024, modernisiert
Anbieter der Immobilie
Das Immo Team - OWL
Johanneswerkstr. 18 A, 33611 Bielefeld

Online-ID: 2m4385t
Referenznummer: 694
Finde Angebote wie dieses
Hier geht es zu unserem Impressum, den Allgemeinen Geschäftsbedingungen, den Hinweisen zum Datenschutz und nutzungsbasierter Online-Werbung.