
Makler am Meer
Frau Bärbel Peters-Lienemann
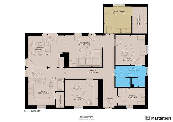
004 ···
Nr. anzeigenPreise & Kosten
Provision für Käufer
provisionsfrei
Lage
Das Wort "Idylle" wird meist etwas überstrapaziert. Hier, in Tilzow passt es jedoch perfekt. Wenn es zwei Vokabeln gibt, die das Leben hier beschreiben, dann sind es wohl "Ruhe" und "Grün". Zwar gehört Tilzow offiziell zu Bergen und damit der größten Stadt auf der Insel. Jedoch ist das kleine Dorf weit genug entfernt, dass...
Das Haus
Kategorie
Einfamilienhaus
Baujahr
2013
Energie & Heizung
Warum sehe ich diese Anzeige? – Du siehst diese Anzeige basierend auf Ihrer Navigation auf unserer Website und den Suchkriterien, die du verwendet hast.
Energieausweistyp
Verbrauchsausweis
Gebäudetyp
Wohngebäude
Baujahr laut Energieausweis
2013
Gültigkeit
bis 28.07.2034
Effizienzklasse
A+
Endenergieverbrauch
6,14 kWh/(m²·a)
Weitere Energiedaten
Energieträger
Gas
Heizungsart
offener Kamin, Zentralheizung
Details
Objektbeschreibung
~~Eine Onlinebesichtigung steht zur Verfügung - bitte kontaktieren sie mich vorab telefonisch unter der 0177 62 55 699 ~~
Ein charmantes rotes Holzhaus im Schwedenstil. Ein liebevoll angelegter Garten, durch den ein kleiner Wasserlauf plätschert. Zwei Terrassen, auf denen Sie ganz entspannt die Sonne genießen dürfen...
Ausstattung
Die Warmwassersolaranlage, das kleine Blockhaus im Garten, drei Stellplätze - viele kleine Extras machen das Leben hier so bequem. Das perfekte Bullerbü also? Falls Sie trotz allem etwas ändern wollen, ist dies kein Problem. Die Wände lassen sich fast alle herausnehmen. Genauso wie das schwimmend verlegte...
Preisinformation
3 Stellplätze
Weitere Informationen
Sonstiges
Sind Sie neugierig geworden ?
Keine noch so ausführliche Beschreibung, kann einen persönlichen Eindruck ersetzen.
Gerne nehme ich mir Zeit für Sie und organisiere einen unverbindlichen Besichtigungstermin.
Rufen Sie mich bitte direkt an.
Ich freue mich auf Ihren Anruf.
Festnetz...
Anbieter der Immobilie
Makler am Meer
Warfsweg 12, 26624 Südbrookmerland
Online-ID: 2m45w5n
Referenznummer: L90
Finde Angebote wie dieses
Hier geht es zu unserem Impressum, den Allgemeinen Geschäftsbedingungen, den Hinweisen zum Datenschutz und nutzungsbasierter Online-Werbung.