

Mulfinger Immobilien
Herr Volker Mulfinger
017 ···
Nr. anzeigenPreise & Kosten
Kaution
1.900,00 1900
Warum sehe ich diese Anzeige? – Du siehst diese Anzeige basierend auf Ihrer Navigation auf unserer Website und den Suchkriterien, die du verwendet hast.
Lage
Lichtenfels ist die Kreisstadt des Landkreises Lichtenfels im bayerischen Regierungsbezirk Oberfranken und ein Mittelzentrum. Sie gehört zur Metropolregion Nürnberg. Die am Oberlauf des Mains gelegene Stadt ist aufgrund ihrer langjährigen Tradition des Korbmacherhandwerks als Deutsche Korbstadt bekannt. Lichtenfels ist über...
Die Wohnung
Wohnungslage
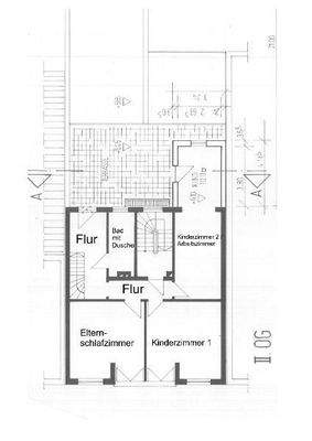
1. Geschoss
Energie & Heizung
Warum sehe ich diese Anzeige? – Du siehst diese Anzeige basierend auf Ihrer Navigation auf unserer Website und den Suchkriterien, die du verwendet hast.
Energieausweistyp
Bedarfsausweis
Gebäudetyp
Wohngebäude
Gültigkeit
24.11.2025 bis 01.11.2035
Effizienzklasse
F
Endenergiebedarf
184,90 kWh/(m²·a)
Weitere Energiedaten
Energieträger
Gas
Heizungsart
Zentralheizung
Details
Ausstattung
Die angebotene Wohnung liegt im 1. und 2. Obergeschoss eines Mehrparteienhauses und erstreckt sich über zwei Etagen. Im ersten Obergeschoss betritt man die Wohnung über den zentralen Flur, von dem aus die offene Küche, der Wohn- /Essbereich, eine Abstellkammer und das untere Bad erreichbar sind. Als Bodenbeläge sind hier im...
Weitere Informationen
Sonstiges
Bitte beachten Sie mein vollständiges Angebot unter www.mulfinger-immobilien.de
Stichworte
Nord-West-Balkon/Terrasse, Breitband Zugang: DSL 250000 mit 250000 Mbit/Sec, Anzahl der Schlafzimmer: 3, Anzahl der Badezimmer: 2, Anzahl der separaten WCs: 2, Anzahl Terrassen: 1, 2 Etagen, Stadtzentrumslage
Anbieter der Immobilie
Mulfinger Immobilien
Braungardtstr. 13, 91325 Adelsdorf

Online-ID: 2m46y5e
Referenznummer: 561
Finde Angebote wie dieses
Hier geht es zu unserem Impressum, den Allgemeinen Geschäftsbedingungen, den Hinweisen zum Datenschutz und nutzungsbasierter Online-Werbung.