
Richard Partners GmbH
Frau Julia Zawadzki
004 ···
Nr. anzeigenPreise & Kosten
Provision für Käufer
3,57% inkl. MwSt.
Lage
Tauchen Sie ein in das idyllische Taunusstein - ein Ort, der ländliche Ruhe und die Nähe zu Wiesbaden und Frankfurt vereint.
Hier finden Sie nicht nur ein Zuhause, sondern auch einen Ort, an dem Natur und modernes Leben Hand in Hand gehen.
Die Lage ist perfekt: In wenigen Autominuten erreichen Sie das Herz von...
Das Haus
Kategorie
Doppelhaushälfte
Baujahr
1986
Bezug
nach Vereinbarung
Energie & Heizung
Warum sehe ich diese Anzeige? – Du siehst diese Anzeige basierend auf Ihrer Navigation auf unserer Website und den Suchkriterien, die du verwendet hast.
Energieausweistyp
Bedarfsausweis
Gebäudetyp
Wohngebäude
Baujahr laut Energieausweis
1986
Wesentliche Energieträger
OEL
Gültigkeit
bis 30.05.2032
Effizienzklasse
B
Endenergiebedarf
64,20 kWh/(m²·a)
Weitere Energiedaten
Energieträger
Öl, Solar
Heizungsart
offener Kamin
Details
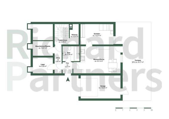
Objektbeschreibung
Diese moderne Doppelhaushälfte präsentiert sich als wahres Schmuckstück und besticht durch ihre großzügige Gestaltung, die einem Einfamilienhauses nichts nachsteht. Der grüne Vorgarten und das elegante Erscheinungsbild, mit braunen Dachziegeln und einer schwarzen, massiven Eingangstür unter einem stilvollen Überdach, heißen...
Ausstattung
. Praktischer Eingangsbereich mit Garderobe und modernem, tageslichtdurchfluteten Bad mit Dusche
. Hochwertige Einbauküche mit maßgefertigter schwarzer Arbeitsplatte (bleibt im Haus)
. Lichtdurchfluteter Wintergarten mit Zugang zum Balkon und Blick ins Grüne
. Mediterraner Kamin im Wohnzimmer für...
Preisinformation
1 Carportplatz
1 Garagenstellplatz
Weitere Informationen
Sonstiges
Für nähere Auskünfte, weitere Objektunterlagen sowie Besichtigungstermine steht Ihnen unsere Mitarbeiterin unter folgender Anschrift gerne zur Verfügung:
Richard Partners | Julia Zawadzki
Theodor-Völker-Str. 13
35423 Lich
Telefon: 0157-92312664
E-Mail...
Anbieter der Immobilie
Richard Partners GmbH
Theodor-Völker-Straße 13, 35423 Lich
Online-ID: 2m47854
Referenznummer: FS_2126
Finde Angebote wie dieses
Hier geht es zu unserem Impressum, den Allgemeinen Geschäftsbedingungen, den Hinweisen zum Datenschutz und nutzungsbasierter Online-Werbung.