

Heinke Immobilien GmbH
Herr Joachim A. Heinke
075 ···
Nr. anzeigenPreise & Kosten
Kaution
3.000,00 2 Monatskaltmieten
Warum sehe ich diese Anzeige? – Du siehst diese Anzeige basierend auf Ihrer Navigation auf unserer Website und den Suchkriterien, die du verwendet hast.
Lage
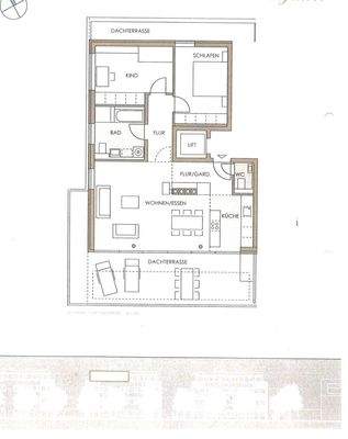
Moderne Penthouse-Wohnung am Riedlewald in zentraler Stadtlage- ruhig und dennoch zentrumsnah
Diese exklusive Penthouse-Wohnung überzeugt durch eine hochwertige Ausstattung und ein überdachtes Raumkonzept.
"Das perfekte Zuhause für alle die Exklusivität, Ruhe und Stadtnähe gleichermaßen schätzen"
Die Wohnung
Kategorie
Penthouse
Wohnungslage
Erdgeschoss
Bezug
01.01.2026
Wohnanlage
Energie & Heizung
Warum sehe ich diese Anzeige? – Du siehst diese Anzeige basierend auf Ihrer Navigation auf unserer Website und den Suchkriterien, die du verwendet hast.
Energieausweistyp
Bedarfsausweis
Gebäudetyp
Wohngebäude
Baujahr laut Energieausweis
2013
Wesentliche Energieträger
ERDGAS_LEICHT
Gültigkeit
bis 30.06.2035
Effizienzklasse
A
Endenergiebedarf
35,90 kWh/(m²·a)
Weitere Energiedaten
Energieträger
Gas
Heizungsart
Fußbodenheizung
Details
Ausstattung
Moderne Einbauküche mit hochwertigen Geräten- perfekt für Genießer
Weitläufiger Wohn- und Essbereich mit Zugang zur großen Dachterrasse- ideal für entspannte Stunden im Freien.
Echtholzparkett mit Fußbodenheizung-
(Einzelraumsteuerung) in allen Wohnräumen
Lüftungsanlage mit...
Preisinformation
2 Tiefgaragenstellplätze, Miete je: 70,00 EUR
Weitere Informationen
Stichworte
Anzahl der Schlafzimmer: 2, Anzahl der Badezimmer: 1, Anzahl der separaten WCs: 1, Anzahl Terrassen: 1
Anbieter der Immobilie

Heinke Immobilien GmbH

Online-ID: 2m48e53
Referenznummer: 799
Finde Angebote wie dieses
Hier geht es zu unserem Impressum, den Allgemeinen Geschäftsbedingungen, den Hinweisen zum Datenschutz und nutzungsbasierter Online-Werbung.