

TEAM ROYAL FINCA S.L.
Frau Nicole Rittershaus
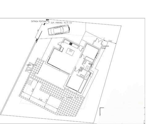
003 ···
Nr. anzeigenPreise & Kosten
Mindestpreis, Verkauf gegen Angebot
Provision für Käufer
provisionsfrei
Lage
• LAGE:
In TORMOS können wir für Sie ein fabelhaftes Einfamilienhaus bauen, entsprechend Ihrer Wünsche und Ansprüche.
Aspaltierte Strasse für die Anfahrt zum Grundstück.
Das flache Grundstück liegt nur 15 Minuten von Denias Sandstränden entfernt und 10 Minuten zum grossen Eikaufszentrum in Ondara, in einer...
Das Haus
Kategorie
Villa
Derzeitige Nutzung
frei
Energie & Heizung
Warum sehe ich diese Anzeige? – Du siehst diese Anzeige basierend auf Ihrer Navigation auf unserer Website und den Suchkriterien, die du verwendet hast.
Weitere Energiedaten
Haustyp
Massivhaus
Details
Objektbeschreibung
Objektbeschreibung
NEUBAU – Bauen Sie sich ein Eigenheim, das Modernität mit Naturelementen verbindet
Diese Immobilie wird Ihnen vorgestellt von Ihrer deutschsprachigen Immobilienagentur
TEAM ROYAL FINCA SL an der Costa Blanca / Els Poblets (Denia)
• SERVICE RÄUME: Pooltechnikraum und Abstellraum...
Weitere Informationen
Besichtigungstermine
nach Vereinbarung
Endtext Neubau
Für weitere Informationen über die modernen oder traditionellen Villen im Bereich Denia wenden Sie sich bitte an uns.
Mit Ihrem deutschsprachigen Immobilienmakler TEAM ROYAL FINCA, haben Sie die Gewissheit, mit einem Team von Fachleuten zusammen zu...
Anbieter der Immobilie

TEAM ROYAL FINCA S.L.

Online-ID: 2m49n5p
Referenznummer: DEV2509VP5
Finde Angebote wie dieses
Hier geht es zu unserem Impressum, den Allgemeinen Geschäftsbedingungen, den Hinweisen zum Datenschutz und nutzungsbasierter Online-Werbung.