
Marko Künne Immobilien
034 ···
Nr. anzeigenPreise & Kosten
Provision für Käufer
5.176,5 €
Lage
Dölitz ist ein historisch gewachsener Stadtteil im Süden von Leipzig.
Aufgrund der kurzen Wege und des guten ÖPNV erreichen sie schnell die Naherholungsgebiete Silbersee, Agra und den Wildpark aber auch Schulen, Kindertagesstätten, Dienstleistungen und Einkaufsmärke.
Die Wohnung
Wohnungslage
2. Geschoss (Dachgeschoss)
Derzeitige Nutzung
vermietet
Wohnanlage
Energie & Heizung
Warum sehe ich diese Anzeige? – Du siehst diese Anzeige basierend auf Ihrer Navigation auf unserer Website und den Suchkriterien, die du verwendet hast.
Weitere Energiedaten
Energieträger
Gas
Heizungsart
Zentralheizung
Details
Objektbeschreibung
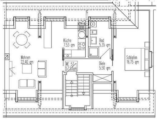
Diese gepflegte 2-Zimmer-Dachgeschosswohnung befindet sich im 2. Obergeschoss eines ruhigen Mehrfamilienhauses. Mit einer Wohnfläche von 58 m² bietet sie eine gut geschnittene Raumaufteilung und ein angenehmes Wohnambiente.
Der Wohnbereich überzeugt durch helles Echtholzparkett und eine freundliche Atmosphäre. Die...
Ausstattung
Ausstattungsmerkmale:
-Parkettboden
-Fliesen-Bodenbelag
-Dusche/WC
-Bad mit Fenster
-offene Küche
-Keller
Preisinformation
Nettorendite Ist in %: 3,39
Nettorendite Soll in %: 3,39
Soll-Mieteinnahmen pro Jahr: 4.920,00 EUR
Ist-Mieteinnahmen pro Jahr: 4.920,00 EUR
Weitere Informationen
Energiepass
Energieausweis wird bei Besichtigung vorgelegt.
Stichworte
Anzahl der Wohneinheiten: 1, Bundesland: Sachsen, 2 Etagen, Wohnungsnr.: 57, modernisiert: 2008, Distanz zum Flughafen: 45.28, Distanz zum Hauptbahnhof: 2.35, Distanz zum Bus: 0.2
Anbieter der Immobilie
Online-ID: 2m4cj5w
Referenznummer: 545237
Finde Angebote wie dieses
Hier geht es zu unserem Impressum, den Allgemeinen Geschäftsbedingungen, den Hinweisen zum Datenschutz und nutzungsbasierter Online-Werbung.