Version: 8.24.0Navigation überspringen
71.200 €
3 Zimmer  •  66,6 m²  •  EG

Wohnung zum Kauf • provisionsfrei
71200 €
1.070 €/m²
3 Zimmer  •  66,6 m²  •  EG

Gepflegte 3 Zimmer Wohnung in ruhiger, gut angebundener Lage - dicht Küchwaldpark

Es handelt sich um eine gepflegte vermietete 3 Zimmer Wohnung in einem ruhigen Mehrfamilienhaus ca. aus dem Jahr 1930. Zur Wohnung gehört ein Sondernutzungsrecht an einem Gemeinschaftsgarten, einem Keller sowie einem Dachbodenanteil.

Haben Sie Interesse? Dann senden Sie die Objekt-Id 1216-01 per WhatsApp oder Signal an 01525 681 3907, per Telegram an VonoviaVerkauf oder per Threema an *VONOVIA.

Details zur Datenverarbeitung bei Vonovia finden SIe unter www.vonovia.de/datenschutz.

Merkmale

  • vermietet
  • Erdgeschoss
Gaszentralheizung, dezentraler Warmwasserbereitung, Bad mit WC und Fenster, Wand- und Bodenfliesen, Wanne, helle und gut geschnittene Wohnräume

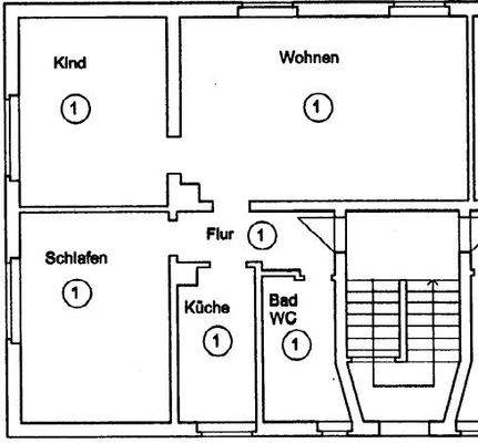
Grundrisse

Grundrisse
1 / 1

Realisiere Dein Projekt

Bausubstanz und Energie

Energieausweis

C
  • Baujahr1939
  • HeizungsartZentralheizung
  • EnergieträgerGas

Preisdetails

Kaufpreis
71200 €
1.069,55 €/m²
Provision für Käufer
provisionsfrei
Weitere Preisinformationen
Soll-Mieteinnahmen pro Jahr: 4.249,80 EUR
Ist-Mieteinnahmen pro Jahr: 4.249,80 EUR
Geschätzte Gesamtkosten
76.540 €1
Kaufpreis
71.200 €
Notarkosten (1,5%)
1.068 €
Grunderwerbsteuer (5,5%)
3.916 €
Grundbucheintrag (0,5%)
356 €
1Der angezeigte Wert ist eine automatisch berechnete Schätzung von immowelt.
2Bei den Angaben handelt es sich um ortsübliche Werte. Individuelle Kosten können abweichen.

Lage

address-icon
Rilkestraße 72Borna-HeinersdorfChemnitz (09114)
Die Wohnung befindet sich in einem gewachsenen Wohngebiet der Stadt Chemnitz und zeichnet sich durch eine ruhige, überwiegend wohnbaulich geprägte Umgebung aus. Das Umfeld ist durch mehrgeschossige Wohnhäuser sowie durchgrünte Innenbereiche gekennzeichnet. Einrichtungen des täglichen Bedarfs wie Einkaufsmöglichkeiten, Ärzte, Apotheken und gastronomische Angebote befinden sich in unmittelbarer Nähe.
Die Anbindung an den öffentlichen Personennahverkehr ist gut. Mehrere Bus- und Straßenbahnhaltestellen befinden sich in fußläufiger Entfernung und ermöglichen eine schnelle Verbindung in die Chemnitzer Innenstadt sowie in andere Stadtteile.
Darüber hinaus bieten nahegelegene Grün- und Erholungsflächen Möglichkeiten zur Freizeitgestaltung. Insgesamt handelt es sich um eine verkehrsgünstige und zugleich ruhige Wohnlage mit guter Infrastruktur.

Weitere Informationen

Sonstiges === Energieträger laut Energieausweis: Gas ===
Alle Angaben in diesem Exposé wurden sorgfältig und so vollständig wie möglich gemacht. Gleichwohl kann das Vorhandensein von Fehlern nicht ausgeschlossen werden. Die Angaben in diesem Exposé erfolgen daher ohne jede Gewähr. Maßgeblich sind die im Kaufvertrag geschlossenen Vereinbarungen. Stichworte 3 Etagen

Weitere Services

Lust auf eine Besichtigung?
Eine Frage zur Immobilie?
Nachricht hinzufügen
Mit der Nutzung der oben angegebenen Telefonnummer oder durch Klicken auf „Kontaktieren“ akzeptierst Du die Allgemeinen Nutzungsbedingungen, denen Du jederzeit widersprechen kannst. Weitere Informationen zum Datenschutz

Über den Anbieter

Universitätsstr. 133, 44803 Bochum
partner badge
Partnerschaft
Herr Mirco LangenDein Kontakt
Online-ID: 2m4dw5x
Referenznummer: 1216-01
Vonovia SE-Selbstständiger Vertriebspartner
Bewertung: 3,7 von 5 Sternen
Nachricht hinzufügen
Mit der Nutzung der oben angegebenen Telefonnummer oder durch Klicken auf „Kontaktieren“ akzeptierst Du die Allgemeinen Nutzungsbedingungen, denen Du jederzeit widersprechen kannst. Weitere Informationen zum Datenschutz
Wie zufrieden bist du mit dieser Seite (nicht mit der Immobilie selbst)?