
Am Buschkamp Immobilien GmbH & Co. KG
Filiale Bielefelder Westen
004 ···
Nr. anzeigenPreise & Kosten
Provision für Käufer
3,57% inkl. MwSt. inkl. MwSt.
3,57% inkl. MwSt. vom notariell beurkundeten Kaufpreis
Lage
Im beliebten Stadtteil Schuckenbaum befindet sich dieses Reihenmittelhaus in ruhiger Lage. Einkaufsmöglichkeiten, Schulen, Ärzte und Freizeitangebote sind schnell erreichbar und sorgen für eine gute Versorgung im Alltag. Durch die günstige Anbindung an den öffentlichen Nahverkehr sowie an die umliegenden Städte wie Bielefeld...
Das Haus
Kategorie
Reihenmittelhaus
Baujahr
1972
Bezug
nach Absprache
Derzeitige Nutzung
vermietet
Energie & Heizung
Warum sehe ich diese Anzeige? – Du siehst diese Anzeige basierend auf Ihrer Navigation auf unserer Website und den Suchkriterien, die du verwendet hast.
Energieausweistyp
Bedarfsausweis
Gebäudetyp
Wohngebäude
Baujahr laut Energieausweis
1998
Wesentliche Energieträger
GAS
Gültigkeit
bis 29.10.2035
Effizienzklasse
G
Endenergiebedarf
209,00 kWh/(m²·a)
Weitere Energiedaten
Haustyp
Massivhaus
Heizungsart
Zentralheizung
Details
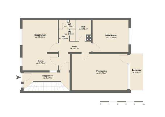
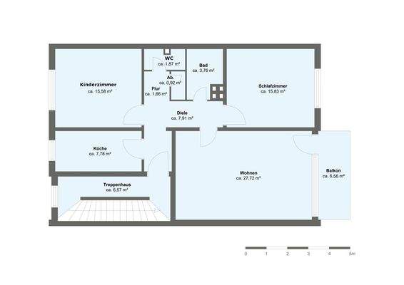
Objektbeschreibung
Kurzbeschreibung
Ob als dauerhaft sichere Kapitalanlage oder zur späteren Eigennutzung mit zusätzlich vermietbaren Einheiten - dieses Objekt bietet Ihnen vielseitige Perspektiven. Aufgrund der langjährigen Mietverhältnisse betragen die gesetzlichen Kündigungsfristen für den Vermieter in allen drei Wohnungen jeweils 9...
Weitere Informationen
Sonstiges
Ob als dauerhaft sichere Kapitalanlage oder zur späteren Eigennutzung mit zusätzlich vermietbaren Einheiten - dieses Objekt bietet Ihnen vielseitige Perspektiven. Aufgrund der langjährigen Mietverhältnisse betragen die gesetzlichen Kündigungsfristen für den Vermieter in allen drei Wohnungen jeweils 9 Monate - für...
Anbieter der Immobilie
Am Buschkamp Immobilien GmbH & Co. KG
Osningstr. 481, 33659 Bielefeld
Online-ID: 2m4ef5z
Referenznummer: YP987
Finde Angebote wie dieses
Hier geht es zu unserem Impressum, den Allgemeinen Geschäftsbedingungen, den Hinweisen zum Datenschutz und nutzungsbasierter Online-Werbung.