
BV Bauträger und Immobilien GmbH
Herrn Mario Körber
+49 ···
Nr. anzeigenPreise & Kosten
Warum sehe ich diese Anzeige? – Du siehst diese Anzeige basierend auf Ihrer Navigation auf unserer Website und den Suchkriterien, die du verwendet hast.
Lage
1A-Lage
Allersberg ist eine beliebte Wohngegend inmitten des Städtedreiecks Neumarkt - Roth - Hilpoltstein, und liegt nur etwa 30 km südöstlich von Nürnberg.
Anbindungen an den öffentlichen VGN-Nahverkehr sind nur etwa 300 - 450 Meter bzw. 3-5 Gehminuten entfernt, (Bushaltestelle "Neumarkter Str." + "Epersdorfer...
Die Wohnung
Wohnanlage
Energie & Heizung
Warum sehe ich diese Anzeige? – Du siehst diese Anzeige basierend auf Ihrer Navigation auf unserer Website und den Suchkriterien, die du verwendet hast.
Energieausweistyp
Bedarfsausweis
Gebäudetyp
Wohngebäude
Baujahr laut Energieausweis
2006
Gültigkeit
bis 03.09.2035
Effizienzklasse
D
Endenergiebedarf
123,80 kWh/(m²·a)
Weitere Energiedaten
Energieträger
Öl
Heizungsart
Zentralheizung
Details
Objektbeschreibung
Das hier angebotene 3 Familien-Wohnhaus wurde 1971 in Massivbauweise errichtet,
laufend instand gehalten, saniert und zeitgemäß modernisiert.
Das Objekt wurde in diesem Jahr in 3 Eigentumswohnungen aufgeteilt und verkauft.
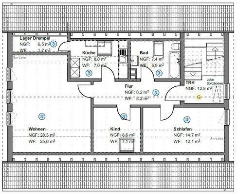
Die hier angebotene 3 Zimmer Wohnung im Dachgeschoss wurde von einem Kapitalanleger...
Ausstattung
-TOP gepflegtes Objekt in Massivbauweise
-gute und ruhige Lage
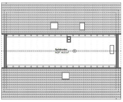
-zur DG-Wohnung gehört auch der darüberliegende Spitzboden mit ca. 44,5 m² Grundfläche
-zur Einheit gehört ein schöner Gartenanteil mit etwa 220 m²
-Öl-Zentralheizung (2006)
-Fassade 2017 renoviert
-erneuerte Kunstoff-Isolierglas-Fenster mit...
Weitere Informationen
Flächen
Die DG Wohnung hat eine DIN-Wohnfläche von 65 m²
(Wohnungs-Grundfläche ca. 82,5 m²)
+ 220m² Gartenanteil
+ 44,6 m² Spitzboden
+ 12,2 m² Kellerabteil
Eine Garage und ein KFZ-Stellplatz davor
Anbieter der Immobilie
BV Bauträger und Immobilien GmbH
Pfinzingweg 9, 91058 Erlangen
Online-ID: 2m4en5m
Referenznummer: 1572
Finde Angebote wie dieses
Hier geht es zu unserem Impressum, den Allgemeinen Geschäftsbedingungen, den Hinweisen zum Datenschutz und nutzungsbasierter Online-Werbung.