

Tauschwohnung GmbH
Herr John Weinert
+49 ···
Nr. anzeigenPreise & Kosten
Warum sehe ich diese Anzeige? – Du siehst diese Anzeige basierend auf Ihrer Navigation auf unserer Website und den Suchkriterien, die du verwendet hast.
Die Wohnung
Energie & Heizung
Warum sehe ich diese Anzeige? – Du siehst diese Anzeige basierend auf Ihrer Navigation auf unserer Website und den Suchkriterien, die du verwendet hast.
Weitere Energiedaten
Heizungsart
Etagenheizung
Details
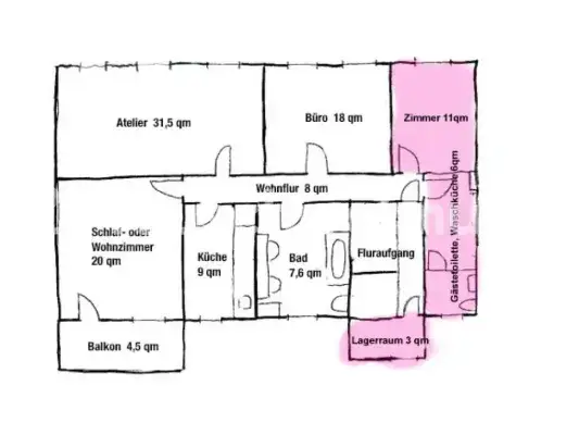
Objektbeschreibung
Es handelt es sich hierbei um ein Tauschangebot. (Anbieter-ID: 356002)
Ich biete eine schöne, helle 4-Zimmer-Altbauwohnung mit Balkon und einer Gesamtfläche von 117 m² zum Tausch. Die Wohnung wurde aufwändig saniert, liegt sehr zentral und ist eine echte Wohlfühloase. Der Hauptbahnhof, Kneipen...
Weitere Informationen
Stichworte
Anzahl Balkone: 1, Anzahl Terrassen: 1
Anbieter der Immobilie

Online-ID: 2m4ex5w
Referenznummer: 356002
Finde Angebote wie dieses
Hier geht es zu unserem Impressum, den Allgemeinen Geschäftsbedingungen, den Hinweisen zum Datenschutz und nutzungsbasierter Online-Werbung.