
Friesacher Immobilien GmbH
Frau Astrid Reitinger
004 ···
Nr. anzeigenPreise & Kosten
zzgl. Betriebskosten
Kaution
4.158,00 €
Provision für Mieter
3 Bruttomonatsmieten zzgl. 20% USt.
Warum sehe ich diese Anzeige? – Du siehst diese Anzeige basierend auf Ihrer Navigation auf unserer Website und den Suchkriterien, die du verwendet hast.
Lage
Die Käferheimerstraße befindet sich in Wals, einer Gemeinde westlich von Salzburg. Die Lage bietet eine hervorragende Verkehrsanbindung.
Die Auffahrt zur Westautobahn (A1) bei "Salzburg-West" ist nur etwa 2,5 Kilometer entfernt. Dies ermöglicht eine schnelle Verbindung in Richtung Wien, Linz sowie nach München...
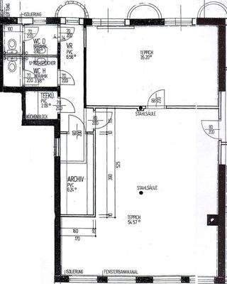
Büro-/Praxisfläche
Bezug
ab sofort
Geschoss
Erdgeschoss
Energie & Heizung
Warum sehe ich diese Anzeige? – Du siehst diese Anzeige basierend auf Ihrer Navigation auf unserer Website und den Suchkriterien, die du verwendet hast.
Heizwärmebedarf (HWB)
168,00 kWh/(m²·a)
Gesamtenergieeffizienz (fGEE)
2,08
Weitere Energiedaten
Heizungsart
Fußbodenheizung, Zentralheizung
Details
Objektbeschreibung
Attraktive Bürofläche in Wals-Käferheim zu vermieten
Zur Vermietung steht eine vielseitig nutzbare Büro- bzw. Gewerbefläche in Wals-Käferheim mit einer gesamten Nutzfläche von ca. 105 m². Die Räumlichkeiten befinden sich im Erdgeschoss und bieten eine flexible Nutzungsmöglichkeit für verschiedene...
Preisinformation
4 Stellplätze
Nettokaltmiete: 1.155,00 EUR
Weitere Informationen
Stichworte
Stellplatz vorhanden, Nutzfläche: 105,00 m², Anzahl der Badezimmer: 1, Anzahl der separaten WCs: 2, Bundesland: Salzburg
Anbieter der Immobilie
Friesacher Immobilien GmbH
Herbert-von-Karajan-Str. 7, 5081 ANIF
Online-ID: 2m4g95e
Referenznummer: OBGC20181121094227675ozyxutql2d
Finde Angebote wie dieses
Hier geht es zu unserem Impressum, den Allgemeinen Geschäftsbedingungen, den Hinweisen zum Datenschutz und nutzungsbasierter Online-Werbung.