

Delta Domizil GmbH
Herr Artur Eberz
051 ···
Nr. anzeigenDieses Angebot ist Teil des Neubauprojekts
Gartenhofhäuser im Kastanienweg
Preise & Kosten
Provision für Käufer
provisionsfrei
Lage
Im idyllischen Süden von Hannover errichtet die Delta Bau AG in Laatzen im neuen Bauabschnitt im Kastanienweg moderne Gartenhofhäuser, die eine harmonische Verbindung zwischen Wohnraum und Natur schaffen und den Bewohnern ein angenehmes und naturnahes Lebensumfeld bieten.
Zusätzlich bietet das gewachsene Umfeld in...
Das Haus
Kategorie
Bungalow
Baujahr
2027
Bezug
2027
Das Neubauprojekt
Energie & Heizung
Warum sehe ich diese Anzeige? – Du siehst diese Anzeige basierend auf Ihrer Navigation auf unserer Website und den Suchkriterien, die du verwendet hast.
Weitere Energiedaten
Haustyp
Massivhaus
Energieträger
Solar
Heizungsart
Fußbodenheizung, Luft-/Wasser-Wärmepumpe
Details
Objektbeschreibung
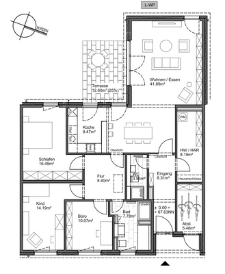
Das Gartenhofhaus am Kastanienweg 17 überzeugt durch seine einzigartige Architektur und die harmonische Verbindung von Wohnraum und Garten. Mit 4 -Zimmern und einer durchdachten Raumaufteilung bietet es jungen Paaren und Familien den idealen Raum für kreatives Wohnen. Der offene Wohn- und Essbereich mit direktem Zugang zur...
Ausstattung
Fußbodenheizung
Elektrische Rollläden an allen Fenstern
Komfortables Wohnen auf einer Ebene
Solide Bauweise: Stein auf Stein
Fenster mit Dreifach-Isolierverglasung
Modernes Energiekonzept mit Luftwärmepumpe und PV-Anlage
Fenster mit sicherer Pilzkopfverriegelung
Abschließbare Fenstergriffe
PKW...
Weitere Informationen
Stichworte
Sonstiges/Wohnen: Dachboden
Anbieter der Immobilie
Delta Domizil GmbH
Hohenzollernstr. 27, 30161 Hannover

Online-ID: 2m4jy53
Finde Angebote wie dieses
Hier geht es zu unserem Impressum, den Allgemeinen Geschäftsbedingungen, den Hinweisen zum Datenschutz und nutzungsbasierter Online-Werbung.