
Immobilien Treffpunkt GmbH
Herr Ralph Grasdanner
004 ···
Nr. anzeigenPreise & Kosten
Provision für Käufer
3,57 % des Kaufpreises inkl. MwSt.
Lage
Die Wohnung befindet sich in einer ruhigen und zugleich zentral gelegenen Wohngegend.
Trotz der ruhigen Lage überzeugt der Standort durch seine hervorragende Infrastruktur: Einkaufsmöglichkeiten für den täglichen Bedarf, Schulen, Kindergärten sowie Ärzte und Apotheken befinden sich in unmittelbarer Nähe und sind bequem...
Die Wohnung
Derzeitige Nutzung
vermietet
Wohnanlage
Energie & Heizung
Warum sehe ich diese Anzeige? – Du siehst diese Anzeige basierend auf Ihrer Navigation auf unserer Website und den Suchkriterien, die du verwendet hast.
Energieausweistyp
Verbrauchsausweis
Gebäudetyp
Wohngebäude
Wesentliche Energieträger
OEL
Gültigkeit
bis 24.10.2028
Effizienzklasse
E
Endenergieverbrauch
139,30 kWh/(m²·a)
Weitere Energiedaten
Energieträger
Öl
Details
Objektbeschreibung
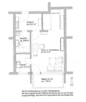
Die 1-Zimmer-Wohnung ist derzeit vermietet und befindet sich im 1. Obergeschoss eines Mehrparteienhauses.
Die Wohnung verfügt über einen Vorraum mit Platz für eine Garderobe, einen Wohnraum mit Schlafnische sowie eine separate Küche. Das Badezimmer ist mit Badewanne, Waschbecken und Toilette ausgestattet. Vom Wohnraum...
Ausstattung
- Westbalkon
- eigenes Kellerabteil
- Pkw-Außenstellplatz
- Trockenraum für Gemeinschaft
Preisinformation
1 Stellplatz
Soll-Mieteinnahmen pro Jahr: 6.240,00 EUR
Ist-Mieteinnahmen pro Jahr: 4.200,00 EUR
Weitere Informationen
Sonstiges
Energieausweis: Verbrauchsausweis
Endenergieverbrauch: 139,30 kWh/qm*a
Befeuerungsart: Heizöl
Baujahr: 1971
Energieeffizienzklasse: E
In den nächsten Jahren sind für das Gebäude folgende Modernisierungen geplant:
- neue Dämmung der Fassade, Keller sowie des Daches
- Strangsanierung Bäder...
Anbieter der Immobilie
Online-ID: 2m4ka5b
Referenznummer: 7007
Finde Angebote wie dieses
Hier geht es zu unserem Impressum, den Allgemeinen Geschäftsbedingungen, den Hinweisen zum Datenschutz und nutzungsbasierter Online-Werbung.