

Bien Zenker Vertriebspartner Birgit Neumann
Frau Birgit Neumann
Kontaktiere den Anbieter schriftlich, es ist keine Telefonnummer hinterlegt.
Preise & Kosten
Provision für Käufer
provisionsfrei
Lage
Dieses letzte Baugrundstück in Eisfeld ist heiß begehrt. Eisfeld ist eine Kleinstadt im Landkreis Hildburghausen im fränkisch geprägten Süden Thüringens.
Die Stadt liegt im Landkreis Hildburghausen, nur wenige Kilometer von der Grenze zu Bayern entfernt im südlichen Vorland des Thüringer Walds. An dessen Nahtstelle zum...
Das Haus
Kategorie
Einfamilienhaus
Energie & Heizung
Warum sehe ich diese Anzeige? – Du siehst diese Anzeige basierend auf Ihrer Navigation auf unserer Website und den Suchkriterien, die du verwendet hast.
Weitere Energiedaten
Haustyp
KfW 55
Heizungsart
Luft-/Wasser-Wärmepumpe
Details
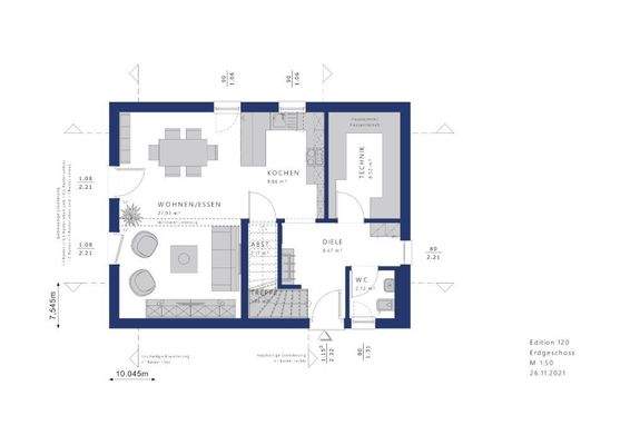
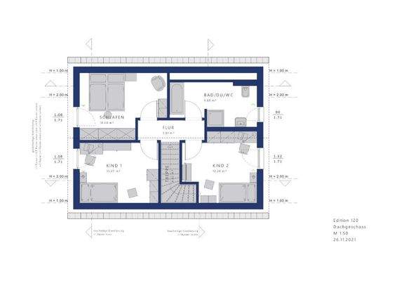
Objektbeschreibung
Mit rund 7,50 mal 10 Metern Grundfläche eignet sich das EDITION 120 perfekt für kleinere Grundstücke - und bietet einer vierköpfigen Familie alles, was man zum Wohnen braucht. Der familienfreundlichen Diele schließt sich ein offener Wohn-Bereich an, und Gäste-WC sowie Technikraum bieten zusätzliche Funktionalität. Erstaunlich...
Ausstattung
Wir erstellen Ihr Haus in bekannter Bien-Zenker Qualität, darin sind folgende Leistungen enthalten:
+ Alle zur Erstellung des Bauantrages notwendigen Architektenleistungen,
+ Ausführung als Effizienzhaus 55, nach Ihrer Wahl selbstverständlich auch als Effizienzhaus 40 oder 40 plus,
+ Inklusive...
Weitere Informationen
Sonstiges
Das Grundstück ist im obigen Preis eingerechnet, es wird ohne zusätzliche Provision an einen Bien-Zenker Bauherren bereitgestellt.
Zusätzliche Baunebenkosten müssen noch hinzugerechnet werden, hierüber beraten wir Sie gern.
Wir bieten Ihnen interessante Finanzierungsmöglichkeiten inklusive Beantragung aller...
Anbieter der Immobilie
Bien Zenker Vertriebspartner Birgit Neumann
Bei den Froschäckern 41, 99098 Erfurt

Frau Birgit Neumann
Dein Ansprechpartner
Kontaktiere den Anbieter schriftlich, es ist keine Telefonnummer hinterlegt.
Online-ID: 2m4lh5x
Referenznummer: 12211-29453
Finde Angebote wie dieses
Hier geht es zu unserem Impressum, den Allgemeinen Geschäftsbedingungen, den Hinweisen zum Datenschutz und nutzungsbasierter Online-Werbung.