
Schantl ITH Immobilientreuhand GmbH
Herr Christopher Wischenbart, BSc
+43 ···
Nr. anzeigenPreise & Kosten
Provision für Käufer
provisionsfrei
Lage
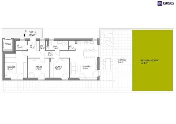
Dieses innovative Wohnbauprojekt mit insgesamt 117 Wohneinheiten befindet sich in der reizenden Marktgemeinde Kalsdorf, welche weniger als 15 Minuten von Graz entfernt ist. Profitieren Sie von einem umfassenden Freizeitangebot (Sporthalle, Eislaufplatz, Hallenbad etc.), ausreichend Einkaufmöglichkeiten und eine atemberaubende...
Die Wohnung
Wohnungslage
4. Geschoss
Bezug
2025
Wohnanlage
Energie & Heizung
Warum sehe ich diese Anzeige? – Du siehst diese Anzeige basierend auf Ihrer Navigation auf unserer Website und den Suchkriterien, die du verwendet hast.
Heizwärmebedarf (HWB)
37,00 kWh/(m²·a)
Gesamtenergieeffizienz (fGEE)
0,70
Weitere Energiedaten
Energieträger
Fernwärme
Heizungsart
Fußbodenheizung
Details
Objektbeschreibung
LEBEN WIE IM PARADIES - 4-ZIMMER-PENTHOUSE MIT RUNDUMBLICK VON DER GROSSZÜGIGEN DACHTERRASSE! ERSTBEZUG 2024!
ERSTBEZUG - FERTIGSTELLUNG 2024! PROVISIONFREI!
Diese traumhafte 4-Zimmer-PENTHOUSE-WOHNUNG wird gerade in einem höchst modernen Bauprojekt in Kalsdorf bei Graz...
Preisinformation
TIEFGARAGENPLATZ EUR21.500,-
Weitere Informationen
Stichworte
Tiefgarage vorhanden, Süd-Ost-Süd-West-West-Balkon/Terrasse, Fahrradraum, Rolladen, Anzahl Terrassen: 1, Balkon-Terrassen-Fläche: 86,00 m², Bundesland: Steiermark
Sonstiges/Wohnen: seniorengerechtes Wohnen
Anbieter der Immobilie

Schantl ITH Immobilientreuhand GmbH
Messendorferstraße 71a, 8041 Graz
Online-ID: 2m4lz5l
Referenznummer: OBGC202512061458150686a8182b373
Finde Angebote wie dieses
Günstige Immobilienfinanzierung einfach online berechnen
Persönliches Angebot berechnenWarum sehe ich diese Werbung? – Du siehst diese Werbung basierend auf Deiner Navigation auf unserer Website und der von Dir verwendeten Suchkriterien.
Diese Werbung wird bezahlt von durchblicker
Werbung melden
Hier geht es zu unserem Impressum, den Allgemeinen Geschäftsbedingungen, den Hinweisen zum Datenschutz und nutzungsbasierter Online-Werbung.