

Volksbank Mittweida Immobilien GmbH
Frau Nancy Stasche
+49 ···
Nr. anzeigenPreise & Kosten
Kaution
658,00
Warum sehe ich diese Anzeige? – Du siehst diese Anzeige basierend auf Ihrer Navigation auf unserer Website und den Suchkriterien, die du verwendet hast.
Lage
Diese Wohnung befindet sich in einer der größten zusammenhängend erhaltenen Gründerzeit- und Jugendstilviertel Deutschlands, dem Kaßberg. Hier erwartet Sie ein charmantes Wohnumfeld mit historischem Flair und einer lebendigen Nachbarschaft.
Das Haus, in dem sich die Wohnung befindet, liegt eingebettet inmitten einer...
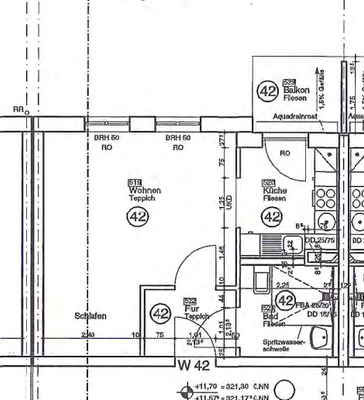
Die Wohnung
Wohnungslage
4. Geschoss
Bezug
01.02.2026
Derzeitige Nutzung
vermietet
Wohnanlage
Energie & Heizung
Warum sehe ich diese Anzeige? – Du siehst diese Anzeige basierend auf Ihrer Navigation auf unserer Website und den Suchkriterien, die du verwendet hast.
Energieausweistyp
Verbrauchsausweis
Gebäudetyp
Wohngebäude
Baujahr laut Energieausweis
1996
Wesentliche Energieträger
Fernwärme
Gültigkeit
03.08.2023 bis 02.08.2033
Effizienzklasse
C
Endenergieverbrauch
86,00 kWh/(m²·a) - Warmwasser enthalten
Weitere Energiedaten
Energieträger
Fernwärme
Heizungsart
Zentralheizung
Details
Objektbeschreibung
Willkommen zur betreuten Wohnanlage im Herzen des Kaßbergs! Diese moderne Wohnanlage wurde 1995 errichtet und bietet Ihnen ein komfortables barrierefreies Wohnen. Durch den Lift gelangen Sie bequem zu den Wohnetagen, dem Kellergeschoss und der Tiefgarage, wodurch Ihnen ein unkomplizierter Zugang zu allen Bereichen...
Ausstattung
Individuelle Ausstattungsmerkmale:
- EBK monatl. 50 €; Keller monatl. 30 €
Willkommen in dieser stilvollen 1-Zimmer-Wohnung mit einer gemütlichen Schlafnische in der betreuten Wohnanlage im Herzen des Kaßbergs. Mit ca. 39 m² bietet diese Wohnung ausreichend Platz, um Ihren Wohnbedürfnissen gerecht zu...
Preisinformation
Nettokaltmiete: 329,00 EUR
Weitere Informationen
Sonstiges
Wir freuen uns über Ihr Interesse an dieser bezaubernden Wohnung! Um Ihnen weitere Unterlagen und Informationen zukommen zu lassen, bitten wir Sie, eine vollständig ausgefüllte Kontaktanfrage über unser Immobilienportal oder unsere Homepage zu senden. Unser Team steht Ihnen jederzeit zur Verfügung, um Ihnen bei...
Anbieter der Immobilie

Volksbank Mittweida Immobilien GmbH
Markt 25, 09648 Mittweida

Online-ID: 2m4mb5p
Referenznummer: 2895-3542
Finde Angebote wie dieses
Hier geht es zu unserem Impressum, den Allgemeinen Geschäftsbedingungen, den Hinweisen zum Datenschutz und nutzungsbasierter Online-Werbung.