
Volksbank Jade-Weser Immobilien GmbH
Frau Lisa von der Pütten
004 ···
Nr. anzeigenPreise & Kosten
Provision für Käufer
5,95 % inkl. MwSt.
Lage
Wilhelmshaven ist eine kreisfreie Stadt im Nordwesten Deutschlands. Sie liegt an der Nordwestküste des Jadebusens, einer großen Meeresbucht an der Nordsee. Mit ca. 76.300 Einwohnern ist sie die zweitgrößte Mittelstadt Niedersachsens und eines der Oberzentren in diesem Bundesland. Seit 2006 gehört Wilhelmshaven zur...
Das Haus
Baujahr
1982
Bezug
sofort!
Energie & Heizung
Warum sehe ich diese Anzeige? – Du siehst diese Anzeige basierend auf Ihrer Navigation auf unserer Website und den Suchkriterien, die du verwendet hast.
Energieausweistyp
Bedarfsausweis
Gebäudetyp
Wohngebäude
Baujahr laut Energieausweis
1982
Wesentliche Energieträger
GAS
Gültigkeit
bis 21.10.2035
Effizienzklasse
F
Endenergiebedarf
163,60 kWh/(m²·a)
Weitere Energiedaten
Energieträger
Gas
Heizungsart
offener Kamin
Details
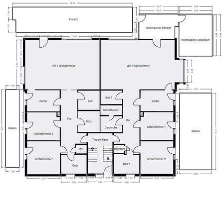
Objektbeschreibung
Repräsentatives Gewerbeobjekt mit zwei Wohneinheiten, großem Grundstück und exklusivem Wellnessbereich.
Dieses außergewöhnliche Objekt vereint komfortables Wohnen, modernes Arbeiten und exklusives Entspannen an einem Ort.
Das Gebäude bietet eine umfangreiche Nutzfläche mit ca. 283 m², sowie zwei großzügige Wohnungen...
Ausstattung
- Bürogebäude mit Platzmeisterwohnung
- Sauna aus 2025
- Innenpool aus 2025
- Voll unterkellert (saniert in 2025)
- 7 Garagen
Preisinformation
10 Stellplätze
7 Garagenstellplätze
Weitere Informationen
Stichworte
Nutzfläche: 283,37 m², Anzahl der Schlafzimmer: 4, Anzahl der Badezimmer: 4, Anzahl der separaten WCs: 1, Anzahl Balkone: 3, Anzahl Terrassen: 1, 2 Etagen, Distanz zum Kindergarten: 0.65, Distanz zur Grundschule: 0.15, Distanz zur Realschule: 2.74, Distanz zum Gymnasium: 0.42, Distanz zum Hauptbahnhof: 2.49...
Anbieter der Immobilie
Volksbank Jade-Weser Immobilien GmbH
Bürgermeister-Heidenreich-Str. 5, 26316 Varel
Online-ID: 2m4ms55
Referenznummer: 9819
Finde Angebote wie dieses
Hier geht es zu unserem Impressum, den Allgemeinen Geschäftsbedingungen, den Hinweisen zum Datenschutz und nutzungsbasierter Online-Werbung.