
Wohnungsbörse Erzgebirge GmbH
Herr Mario Bley
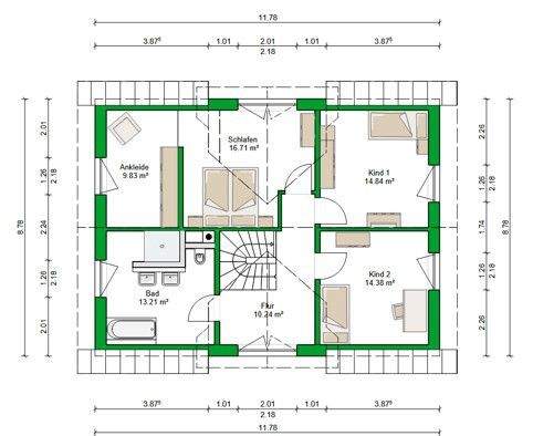
004 ···
Nr. anzeigenPreise & Kosten
Provision für Käufer
3,57% des Kaufpreises inkl. d. gesetzl. MwSt.
Lage
Idyllisch wohnen in Striegistal-Böhrigen - zwischen Freiberg, Mittweida und Chemnitz.
Das Einfamilienhaus befindet sich im Striegistaler Ortsteil Böhrigen, einer ruhigen und naturnahen Wohnlage im Landkreis Mittelsachsen. Die Umgebung ist geprägt von weiten Feldern, sanften Hügeln und einer intakten Dorfgemeinschaft -...
Das Haus
Kategorie
Einfamilienhaus
Baujahr
2025
Bezug
sofort
Energie & Heizung
Warum sehe ich diese Anzeige? – Du siehst diese Anzeige basierend auf Ihrer Navigation auf unserer Website und den Suchkriterien, die du verwendet hast.
Weitere Energiedaten
Energieträger
Solar
Heizungsart
Fußbodenheizung, Luft-/Wasser-Wärmepumpe, offener Kamin
Details
Objektbeschreibung
Dieses hochwertige Neubau-Einfamilienhaus richtet sich an Käufer mit Anspruch an Qualität, Komfort und Nachhaltigkeit. In ruhiger, naturnaher Lage von Striegistal-Böhrigen bietet Ihnen diese Immobilie ein modernes Zuhause, das architektonische Klarheit mit zukunftsorientierter Haustechnik verbindet - und das ohne Bauzeit...
Ausstattung
- Architektur & Bauweise - Individuell geplantes Einfamilienhaus in moderner Massivbauweise -
Effizienzhaus 55 EE (Energieklasse A+) - Hochwertige Fassadengestaltung mit architektonischen
Akzenten - Dreifachverglaste Fenster und Haustür
- Energie & Technik - Luft/Wasser-Wärmepumpe mit Fußbodenheizung in...
Weitere Informationen
Sonstiges
Provision: 3,57 % des Kaufpreises inkl. gesetzlicher MwSt., fällig und verdient bei Abschluss des notariellen Kaufvertrags.
Diese Immobilie wird exklusiv auf Basis eines Alleinauftrags vermarktet. Daher können Besichtigungstermine ausschließlich in Abstimmung mit uns und unter unserer Begleitung stattfinden...
Anbieter der Immobilie
Online-ID: 2m4n25t
Referenznummer: 9311
Finde Angebote wie dieses
Hier geht es zu unserem Impressum, den Allgemeinen Geschäftsbedingungen, den Hinweisen zum Datenschutz und nutzungsbasierter Online-Werbung.