Hausverwaltung Radeberg

Frau Christa Grüninger

Maisonettenwohnung mit Blick zum Wald

€ 450
Kaltmiete zzgl. NK
56,89 m²
Wohnfläche ca.
2
Zimmer

Der Anbieter dieses Objekts hat gegenüber der AVIV Germany GmbH als Betreiber dieses Online-Marktplatzes erklärt, nicht als Unternehmer im Sinne des § 1 KSchG zu handeln. Die im Verbraucherschutzrecht der Union verankerten Verbraucherrechte (insbesondere Informationspflichten und Rücktritts- bzw. Widerrufsrechte) finden auf den Vertrag zwischen dem Anbieter des Objekts und Ihnen (dem Interessenten) keine Anwendung.

Gewerblicher Anbieter

Der Anbieter dieses Objekts hat gegenüber der AVIV Germany GmbH als Betreiber dieses Online-Marktplatzes erklärt, als Unternehmer im Sinne des § 1 KSchG zu handeln.

AdresseLandwehrweg 15
01454 Radeberg / Feldschlößchen 
Auf Karte ansehen

Preise & Kosten

Kaltmiete € 450 Nebenkosten € 200

Kaution

900,00

Lage

Das liebliche Feldschlößchen ist nur 1 Kilometer von Radeberg entfernt und zeichnet sich durch die absolute Ruhe aus. Die große Kreisstadt Radeberg mit ca. 18.000 Einwohnern bietet ihnen alles für das tägliche Leben, von Kindereinrichtungen, Schulen, Ärzten, Einkaufmöglichkeiten bis hin zu zahlreichen Freizeitaktivitäten. Die...

Mehr anzeigen

Die Wohnung

Kategorie

Maisonette

Bezug

ab 01.01.2026

  • Böden: Fliesenboden, Kunststoffboden
  • Weitere Räume: Kelleranteil

Wohnanlage

  • Baujahr: 1997
  • 1 Stellplatz

Energie & Heizung

Weitere Energiedaten

Energieträger

Gas

Heizungsart

Zentralheizung

Details

Objektbeschreibung

Kurzbeschreibung
Neubau, Balkon, Maissonette,

Objekt
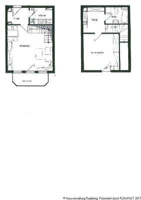
Diese urgemütliche 2-Raumwohnung geht über 2 Etagen. Im 1. Dachgeschoss befinden sich die Küche sowie ein lichtdurchflutetes Wohnzimmer mit angenehmen Süd-Westbalkon, welcher einen schönen Blick ins Grüne bietet. Über eine massive Holztreppe gelangen Sie ins 2...

Mehr anzeigen

Preisinformation

Nettokaltmiete: 450,00 EUR

Weitere Informationen

Sonstiges
Baujahr: 1997
Energie mit Warmwasser: Ja
Energiekennwert: 0 kWh/(m²*a)
Befeuerung/Energieträger: Erdgas leicht
Energieausweistyp: Verbrauchsausweis
Heizungsart: Zentralheizung

I

Stichworte
Stellplatz vorhanden, 3 Etagen

Anbieter der Immobilie

Hausverwaltung Radeberg

im Durchschnitt  1,00  Sterne
(bei 1 Bewertungen)

Schillerstraße 95, 01454 Radeberg

user

Frau Christa Grüninger

Dein Ansprechpartner

Anbieter-Website Anbieter-Profil Anbieter-Impressum

Online-ID: 2m4pp5v

Referenznummer: 221

Finde Angebote wie dieses

imageimageimage

Hier geht es zu unserem Impressum, den Allgemeinen Geschäftsbedingungen, den Hinweisen zum Datenschutz und nutzungsbasierter Online-Werbung.